Eksempler
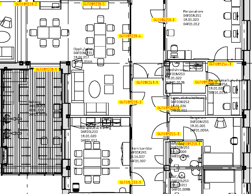
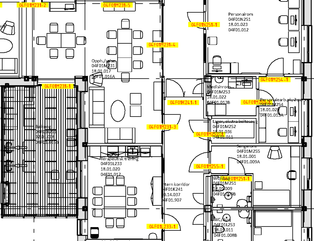
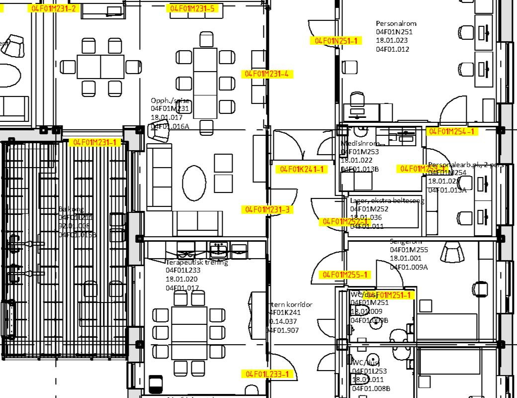
Horisontalt driftsmodell og løsningskonsept (2025)
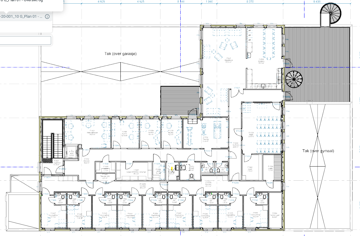
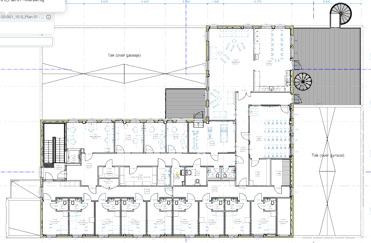
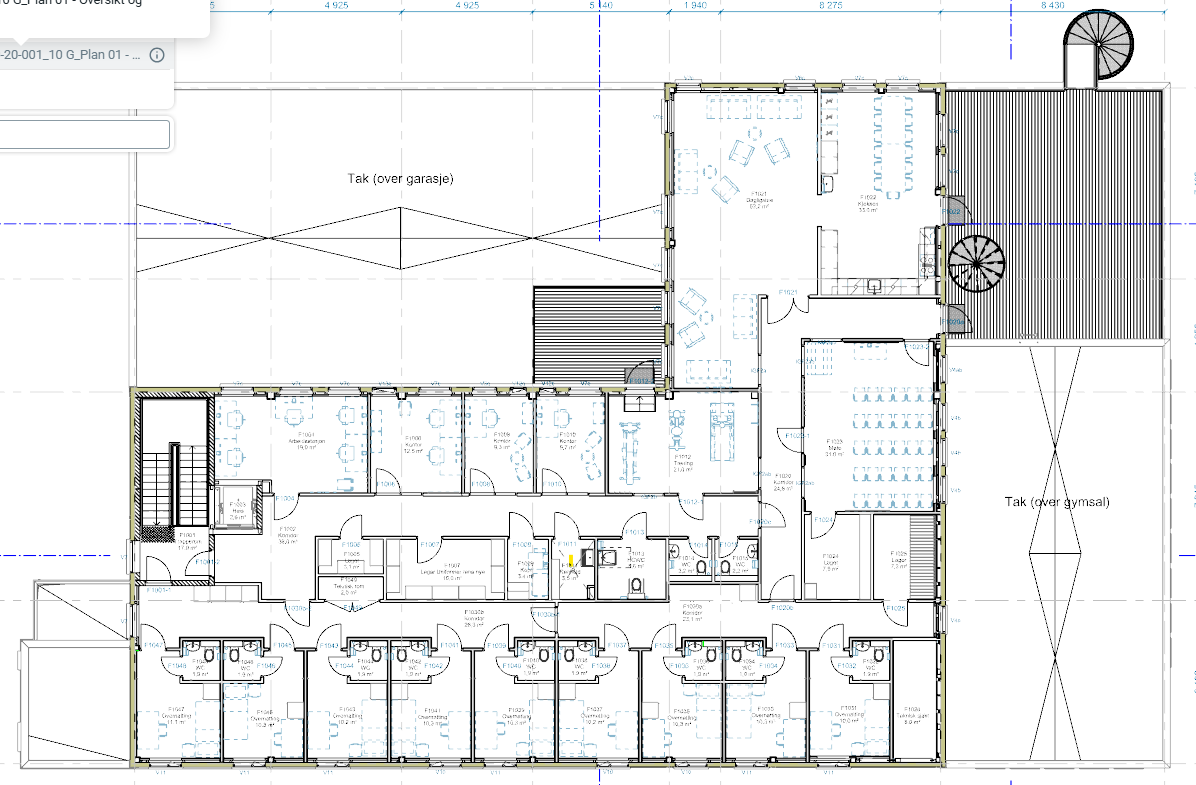
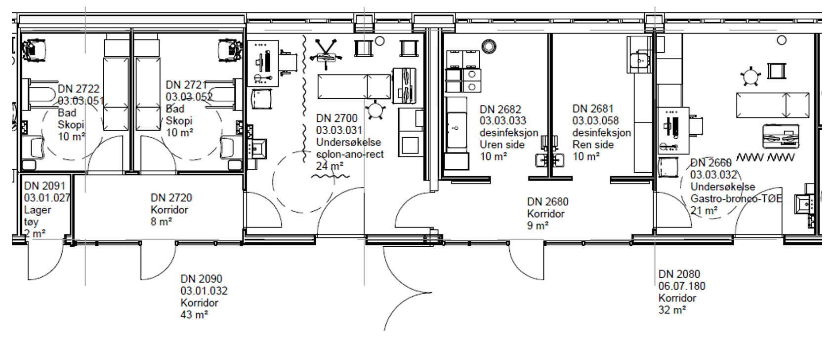
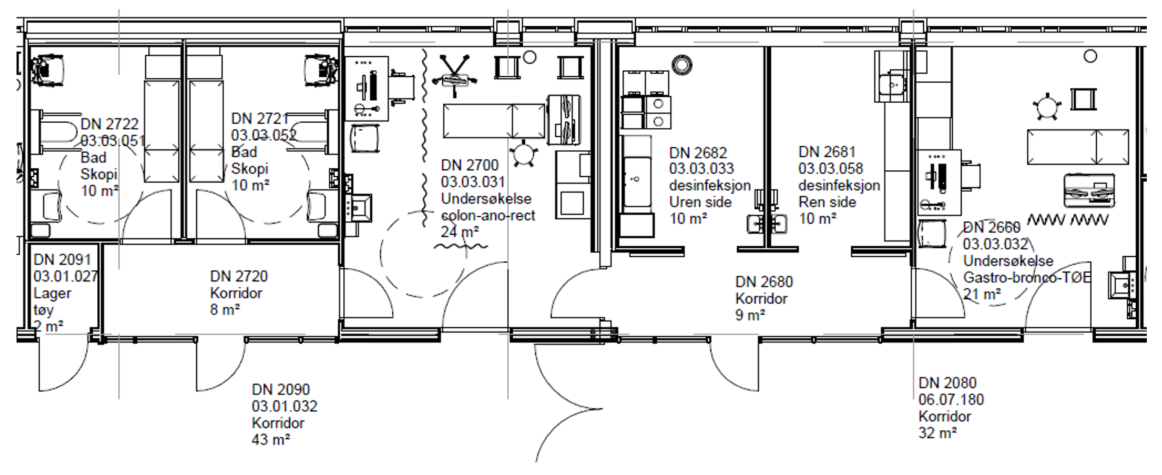
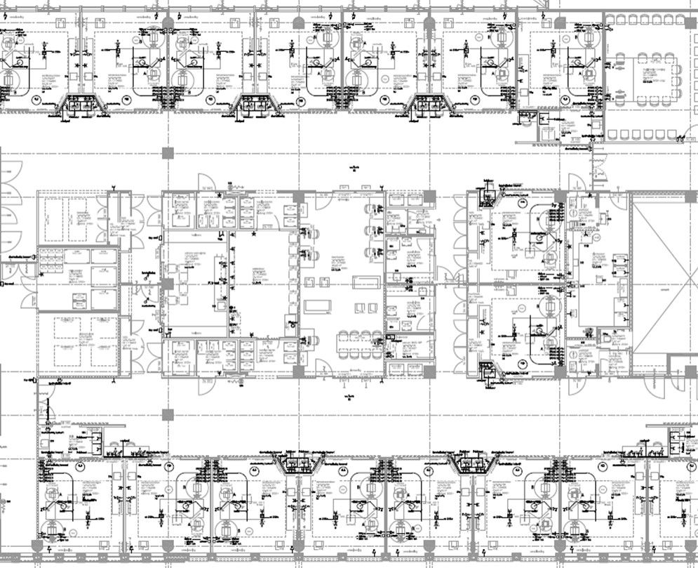
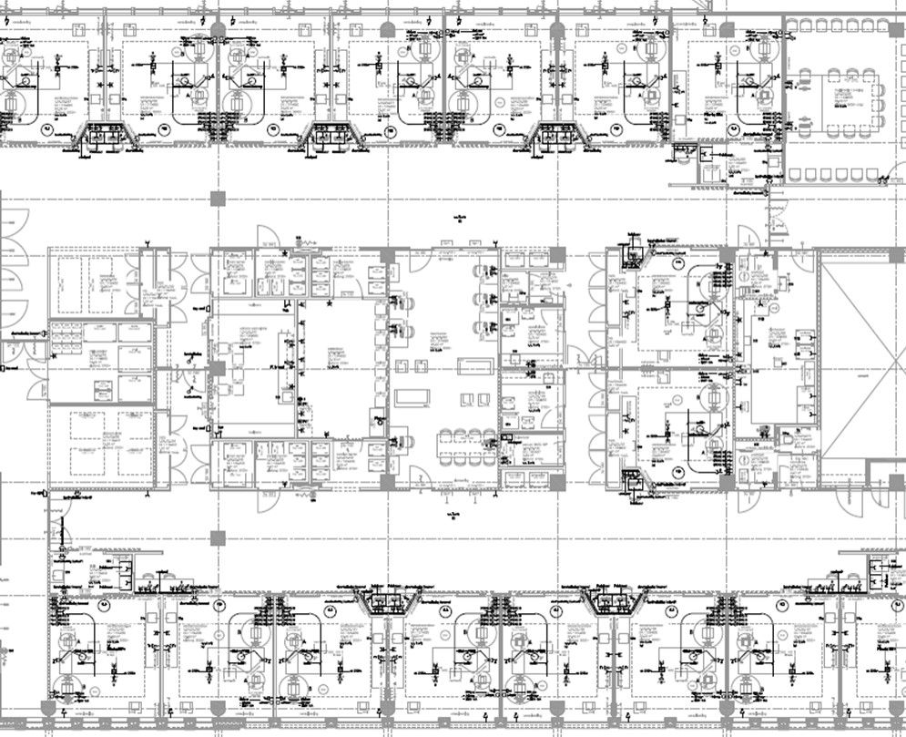
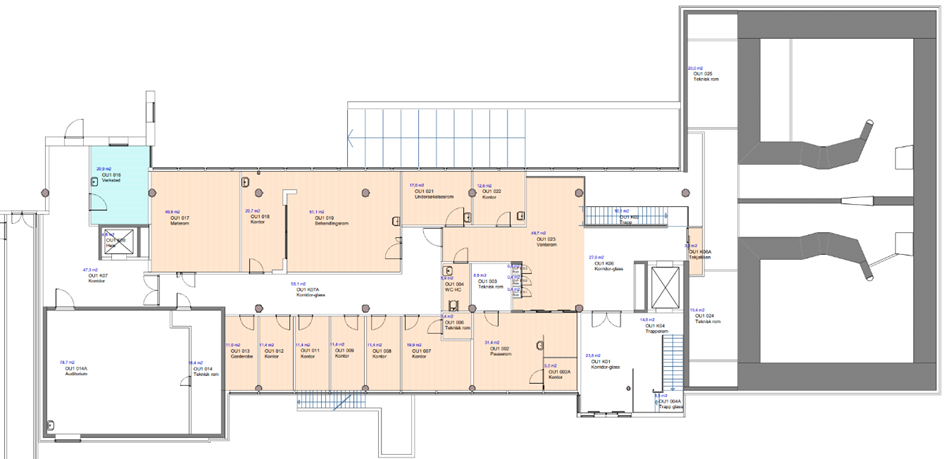
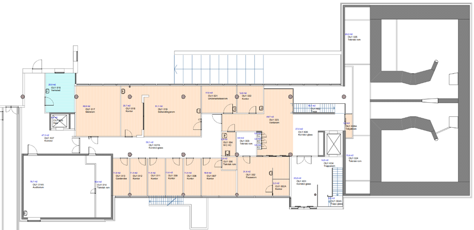
Helse Fonna HF - Haugesund sjukehus
2A.10 Poliklinikk2B.6 Dagområde

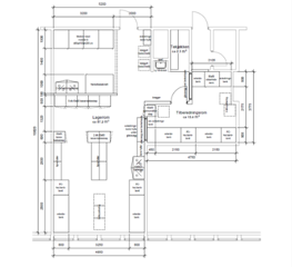
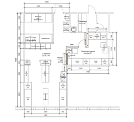
Akuttsjukehuset Hjelset, Helse Møre og Romsdal HF (2025)
Helse Møre og Romsdal HF - Hjelset
4.10 SentralkjøkkenSR.071.02 Kjøkken, produksjonSR.071.05 Kjøkken

Ambualnsestasjon, 4 biler (2024)
Universitetssykehuset Nord-Norge HF - Narvik
3.7 Ambulansetjeneste

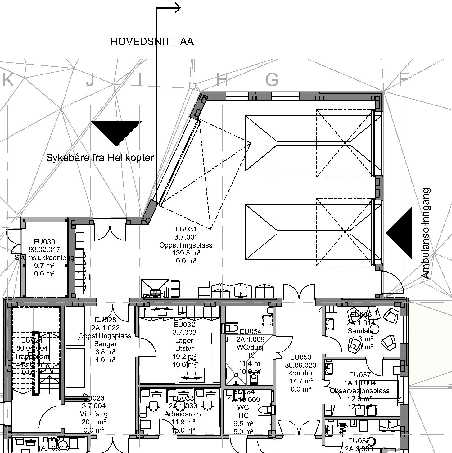
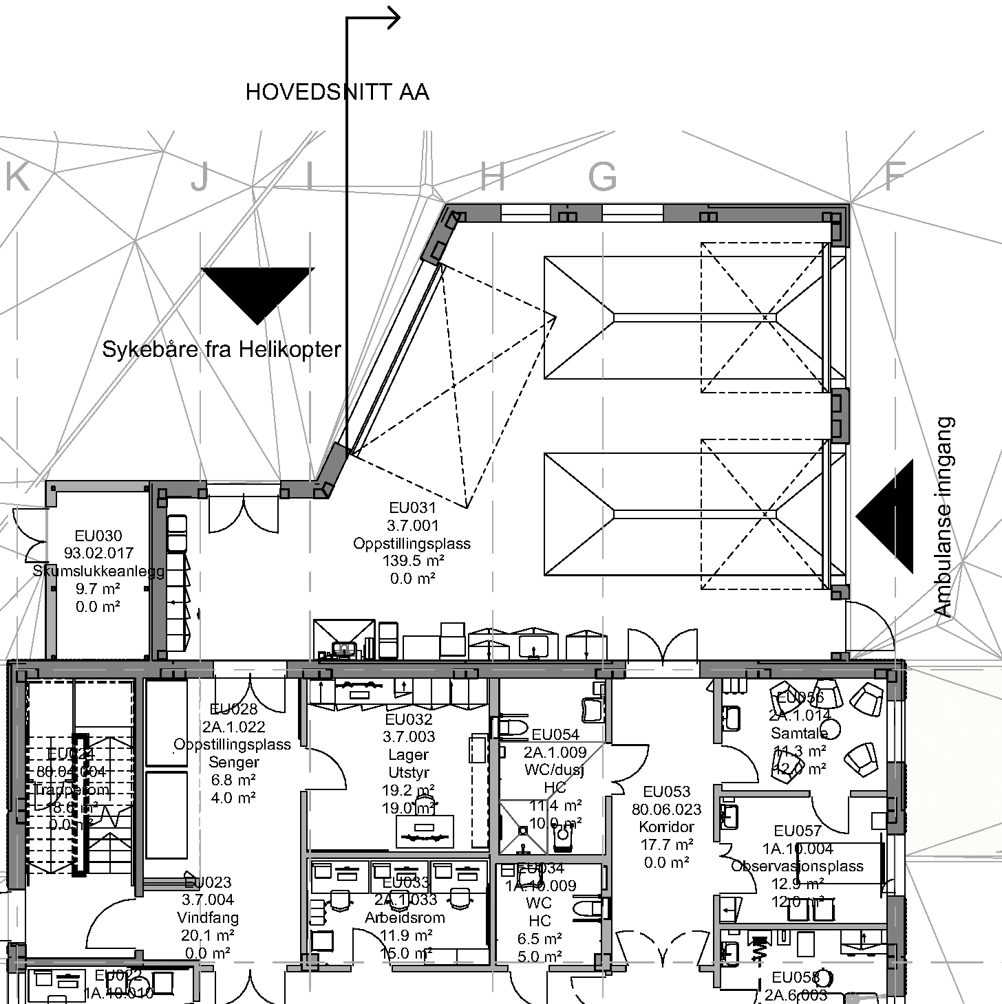
Ambulansehall med støtterom Somatikk, Narvik (2024)
Universitetssykehuset Nord-Norge HF - Narvik
3.7 Ambulansetjeneste

Ambulansehall med støtterom Somatikk, Nye Aker (2031)
Oslo universitetssykehus HF - Aker
3.7 Ambulansetjeneste

Ambulansehall med støtterom, Nye akuttsykehuset Herlev, Danmark (2022)
3.7 Ambulansetjeneste

Ambulansehall med støtterom, PHV, Nordbyhagen (2026)
Akershus Universitetssykehus HF - Gardermoen
3.7 Ambulansetjeneste

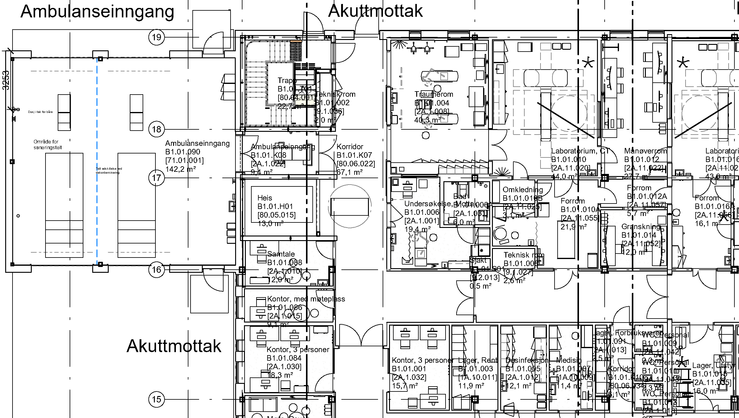
Ambulanseinngang med støtterom Somatikk, Drammen (2025)
Vestre Viken HF - Drammen sykehus
3.7 Ambulansetjeneste

Ambulanseinngang med støtterom Somatikk, Kirkenes (2027)
Finnmarkssykehuset HF - Kirkenes
3.7 Ambulansetjeneste

Ambulanseinngang med støtterom Somatikk, Kirkenes (2017)
Finnmarkssykehuset HF - Kirkenes
3.7 Ambulansetjeneste

Ambulanseinngang med støtterom Somatikk, Nye Hammerfest (2025)
Finnmarksykehuset HF - Hammerfest
3.7 Ambulansetjeneste

Ambulanseinngang med støtterom Somatikk, Vesterålen (2014)
Nordlandssykehuset HF - Stokmarknes i Vesterålen
3.7 Ambulansetjeneste

Ambulanseinngang med støtterom og lukket CBRNE Somatikk, SNR (2025)
Helse Møre og Romsdal HF - Hjelset
3.7 Ambulansetjeneste

Ambulansestasjon, 1 bil (2023)
Universitetssykehuset Nord-Norge HF - Skibotn
3.7 Ambulansetjeneste

Arbeidsstasjon (2014)
Nordlandssykehuset HF - Stokmarknes i Vesterålen
1A.9 NormalsengeområdeSR.005.00 Arbeidsstasjon, indre soneSR.005.01 Arbeidsstasjon, ytre sone
Evaluert 2018-06-29

Arbeidsstasjon Akershus universitetssykehus (2008)
Akershus universitetssykehus HF - Nordbyhagen
1A.9 NormalsengeområdeSR.005.00 Arbeidsstasjon, indre soneSR.005.01 Arbeidsstasjon, ytre sone

Arbeidsstasjon Ringerike sykehus, Vestre Viken HF (2005)
Vestre Viken HF - Ringerike sykehus
1A.9 NormalsengeområdeSR.005.00 Arbeidsstasjon, indre soneSR.005.01 Arbeidsstasjon, ytre sone

Arbeidsstasjon somatikk (2024)
Finnmarksykehuset HF - Hammerfest
1A.9 NormalsengeområdeSR.005.00 Arbeidsstasjon, indre soneSR.005.01 Arbeidsstasjon, ytre sone

Arbeidsstasjon somatikk (2025)
Vestre Viken HF - Drammen sykehus
1A.9 NormalsengeområdeSR.005.00 Arbeidsstasjon, indre soneSR.005.01 Arbeidsstasjon, ytre sone

Arbeidsstasjon somatikk (2025)
Helse Stavanger HF - Stavanger Universitetssjukehus
1A.9 NormalsengeområdeSR.005.00 Arbeidsstasjon, indre soneSR.005.01 Arbeidsstasjon, ytre sone

Arbeidsstasjon somatikk, Sykehuset i Tønsberg (2021)
Sykehuset i Vestfold HF - Tønsberg
1A.9 NormalsengeområdeSR.005.00 Arbeidsstasjon, indre soneSR.005.01 Arbeidsstasjon, ytre sone

Arbeidsstasjon, indre og ytre sone (2009)
St. Olavs Hospital HF - Øya
1A.9 NormalsengeområdeSR.005.00 Arbeidsstasjon, indre soneSR.005.01 Arbeidsstasjon, ytre sone

Arbeidsstasjon, indre og ytre sone (2015)
Sykehuset Østfold HF - Kalnes
1A.9 NormalsengeområdeSR.005.00 Arbeidsstasjon, indre soneSR.005.01 Arbeidsstasjon, ytre sone
Evaluert 2023-12-26

Areal for Barnehabilitering Ahus (2008)
Akershus Universitetssykehus HF - Gardermoen
2A.10 Poliklinikk2A.13 Habilitering/rehabilitering

Areal for Barnehabilitering Kalnes (2015)
Sykehuset Østfold HF - Kalnes
2A.10 Poliklinikk1A.5 Habilitering / Rehabilitering

Areal for barnehabilitering Haukeland (2023)
Helse Bergen HF - Haukeland universitetssjukehus
2A.10 Poliklinikk2A.13 Habilitering/rehabilitering

Areal for barnehabilitering Hjelset (2025)
Helse Møre og Romsdal HF - Hjelset
2A.10 Poliklinikk2A.13 Habilitering/rehabilitering

Avfallshåndtering Nye Aker sykeshus
Oslo universitetssykehus HF - Aker
4.1 Avfallshåndtering
Bad somatikk (2020)
Nordlandssykehuset HF - Bodø
1A.9 NormalsengeområdeSR.011.00 Bad
Evaluert 2023-09-07

Bad somatikk (2021)
Sykehuset i Vestfold HF - Tønsberg
1A.9 NormalsengeområdeSR.011.00 Bad

Behandlings-/treningsrom for fysioterapi (2024)
Helse Møre og Romsdal HF - Hjelset
1A.9 Normalsengeområde2A.3 Ergo- og Fysioterapi2A.5 Kliniske støttefunksjoner

Bildediagnostikk (2025)
Vestre Viken HF - Drammen sykehus
2A.11 Radiologi

Bildediagnostikk (2008)
Akershus universitetssykehus HF - Nordbyhagen
2A.11 Radiologi
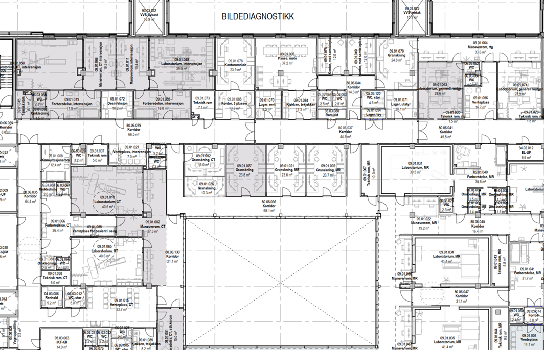
Bildediagnostikk (2025)
Helse Møre og Romsdal HF - Hjelset
2A.11 Radiologi

Bildediagnostikk, Ny Storbylegevakt i Oslo
Oslo kommune - Ny storbylegevakt
2A.11 Radiologi

Bildediagnostikk, løsningskonsept (2018)
Finnmarkssykehuset HF - Kirkenes
2A.11 Radiologi
Evaluert 2021-12-17

Bildediagnostikk, løsningskonsept (2015)
Sykehuset Østfold HF - Kalnes
2A.11 Radiologi
Evaluert 2020-03-26

Billeddiagnostikk (2025)
Helse Stavanger HF - Stavanger Universitetssjukehus
2A.11 Radiologi

Billeddiagnostikk (2024)
Oslo universitetssykehus HF - Nye Radiumhospitalet
2A.11 Radiologi

Billeddiagnostikk (2006)
St. Olavs Hospital HF - Øya
2A.11 Radiologi

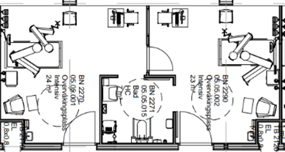
Bygg Haugesund2020, byggetrinn1, Helse Fonna (2021)
Helse Fonna HF - Haugesund sjukehus
1A.6 Intensiv

Bygg Haugesund2020, byggetrinn1, Helse Fonna Løsningskonsept Intensiv/Overvåking (2021)
Helse Fonna HF - Haugesund sjukehus
1A.6 Intensiv

Comprehensive Cancer Center, University of Texas Southwestern, USA
2A.12 Stråleterapi, foton og brachyterapi. Protonterapi.

Dagområde i smal bygningskropp (2006)
Vestre Viken HF - Bærum sykehus
2B.6 Dagområde

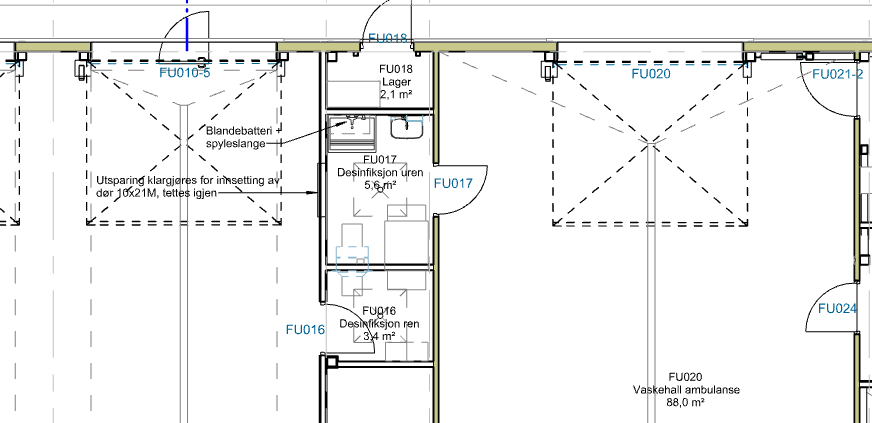
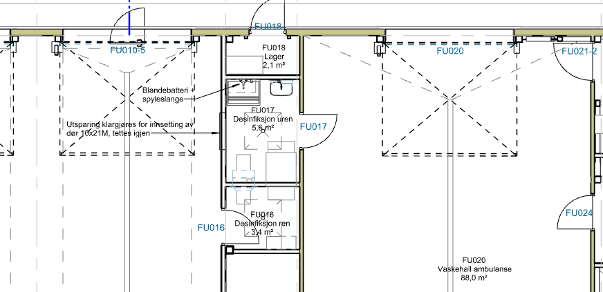
Desinfeksjonsrom med 2-romsløsning (2024)
Universitetssykehuset Nord-Norge HF - Narvik
3.7 AmbulansetjenesteSR.028.01 Desinfeksjon, Somatikk - uren side ( 2-roms løsning)SR.028.03 Desinfeksjon, ren side (2-roms løsning)

Dialyse
Nordlandssykehuset HF - Bodø
2A.14 DagområdeSR.025.03 Dagplass, dialyse
Evaluert 2023-09-07

Dialyse avdeling (2006)
Vestre Viken HF - Bærum sykehus
2A.14 Dagområde

Dialyse avdeling (2021)
Nordlandssykehuset HF - Bodø
2A.14 Dagområde
Evaluert 2023-09-07

Dobbelkorridorløsning. Medisinsk poliklinikk (2006)
Vestre Viken HF - Bærum sykehus
2A.10 Poliklinikk

Dype, brede bygg (2002)
Erasmus MC Hospital, Rotterdam NL - Rotterdam Nederland
2A.10 Poliklinikk2A.14 Dagområde1A.9 Normalsengeområde

Dørstopper PHV (2023)
Sykehuset Sørlandet HF - Kristiansand
1B.4 NormalsengeområdeSR.134.02 Sengerom, skjerming, PHV/TSBSR.134.04 Sengerom, PHV/TSBSR.134.05 Sengerom, stort, PHV/TSB

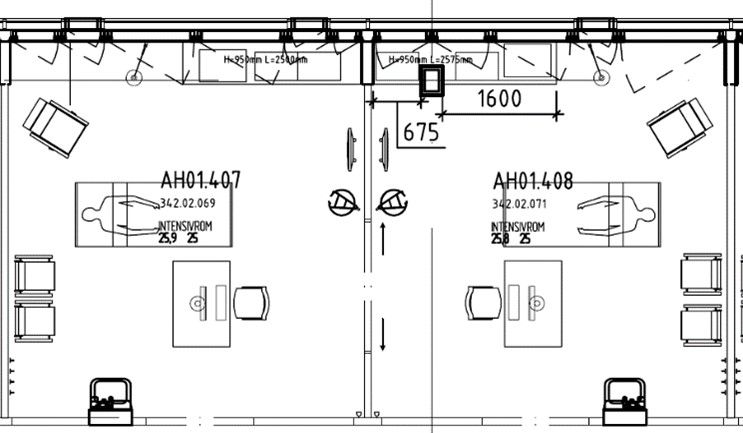
Eksempel intensivrom Malmø, skåneregionen (2010)
Skånes universitetssjukhus Malmø - Malmø, Sverige
1A.6 Intensiv

Eksempel intensivrom Nye Karolinska, Stockholm, Sverige (2018)
Nye Karolinska, Stockholm, Sverige - Stockholm, Sverige
1A.6 Intensiv

Eksempel intensivrom Nytt sykehus Drammen (2025)
Vestre Viken HF - Drammen sykehus
1A.6 Intensiv

Eksempel intensivrom OUS, Nye Aker og OUS Rikshospitalet (2031)
Oslo universitetssykehus HF - Rikshospitalet
1A.6 Intensiv

Eksempel intensivrom SNR (Sjukehuset Nordmøre og Romsdal), Hjelset (2025)
Helse Møre og Romsdal HF - Hjelset
1A.6 IntensivSR.134.06 Sengerom, intensiv

Eksempel intensivrom Stavanger universitetssykehus, nye SUS (2025)
Helse Stavanger HF - Stavanger Universitetssjukehus
1A.6 Intensiv

Eksempel på tilpasningsdyktighet St. Olavs hospital HF (2009)
St. Olavs Hospital HF - Øya
1A.9 Normalsengeområde
Eksempel på tilpasningsdyktighet, Stavanger Universitetssykehus Nye SUS (2025)
Helse Stavanger HF - Stavanger Universitetssjukehus
1A.9 Normalsengeområde

Eksempel: Treningsareal og kontor for både fysioterapi og ergoterapi (2024)
Universitetssykehuset Nord-Norge HF - Narvik
1A.9 Normalsengeområde2A.5 Kliniske støttefunksjoner2A.3 Ergo- og Fysioterapi

Eksempel: Arbeidsområde for ergoterapi (2015)
Sykehuset Østfold HF - Kalnes
1B.4 Normalsengeområde2B.2 Ergo- og fysioterapi2B.4 Kliniske støttefunksjoner

Eksempel: Areal for både fysioterapi og ergoterapi (2008)
Akershus Universitetssykehus HF - Gardermoen
2A.10 Poliklinikk2A.5 Kliniske støttefunksjoner2A.3 Ergo- og Fysioterapi

Eksempel: Areal for både fysioterapi og ergoterapi (2024)
Finnmarksykehuset HF - Hammerfest
2A.10 Poliklinikk2A.3 Ergo- og Fysioterapi2A.5 Kliniske støttefunksjoner

Eksempel: Areal for både fysioterapi og ergoterapi (2024)
Universitetssykehuset Nord-Norge HF - Narvik
2A.10 Poliklinikk2A.5 Kliniske støttefunksjoner2A.3 Ergo- og Fysioterapi

Eksempel: Areal for kliniske støttefunksjoner (2024)
Helse Møre og Romsdal HF - Hjelset
2A.10 Poliklinikk2A.5 Kliniske støttefunksjoner2A.3 Ergo- og Fysioterapi

Eksempel: Areal for kliniske støttefunksjoner (2024)
Universitetssykehuset Nord-Norge HF - Narvik
2A.10 Poliklinikk2A.5 Kliniske støttefunksjoner2A.3 Ergo- og Fysioterapi

Eksempel: Areal for sosionom PHV (2015)
Sykehuset Østfold HF - Kalnes
2A.5 Kliniske støttefunksjoner1B.4 Normalsengeområde

Eksempel: Behandlingsareal for fysioterapi i sengepost, somatikk (2015)
Sykehuset Østfold HF - Kalnes
1A.9 Normalsengeområde2A.5 Kliniske støttefunksjoner2A.3 Ergo- og Fysioterapi

Eksempel: Behandlingsrom for fysioterapi (2014)
Nordlandssykehuset HF - Stokmarknes i Vesterålen
1A.9 Normalsengeområde2A.5 Kliniske støttefunksjoner2A.3 Ergo- og Fysioterapi

Eksempel: Behandlingsrom for fysioterapi med tilstøtende wc (2014)
Nordlandssykehuset HF - Stokmarknes i Vesterålen
1A.9 Normalsengeområde2A.5 Kliniske støttefunksjoner2A.3 Ergo- og Fysioterapi

Eksempel: Kjøkken, trening (2024)
Finnmarksykehuset HF - Hammerfest
1A.9 Normalsengeområde2A.3 Ergo- og Fysioterapi2A.5 Kliniske støttefunksjoner

Eksempel: Treningskjøkken ergoterapi (2014)
Nordlandssykehuset HF - Stokmarknes i Vesterålen
2A.10 Poliklinikk2A.3 Ergo- og Fysioterapi2A.5 Kliniske støttefunksjoner

Eksempel: Treningsrom ergo- og fysioterapi (2014)
Nordlandssykehuset HF - Stokmarknes i Vesterålen
2A.10 Poliklinikk2A.3 Ergo- og Fysioterapi2A.5 Kliniske støttefunksjoner

Eksempel: Treningsrom fysioterapi i poliklinikkareal (2025)
Vestre Viken HF - Drammen sykehus
2A.10 Poliklinikk2A.3 Ergo- og Fysioterapi2A.5 Kliniske støttefunksjoner

Eksempel: Undersøkelse- og behandlingsrom (2014)
Nordlandssykehuset HF - Stokmarknes i Vesterålen
2A.10 Poliklinikk2A.3 Ergo- og Fysioterapi2A.5 Kliniske støttefunksjoner

Elektroniske tøyskap
St. Olavs Hospital HF - Øya

Endoskopi (2018)
Finnmarkssykehuset HF - Kirkenes
2A.10 Poliklinikk
Evaluert 2021-12-17

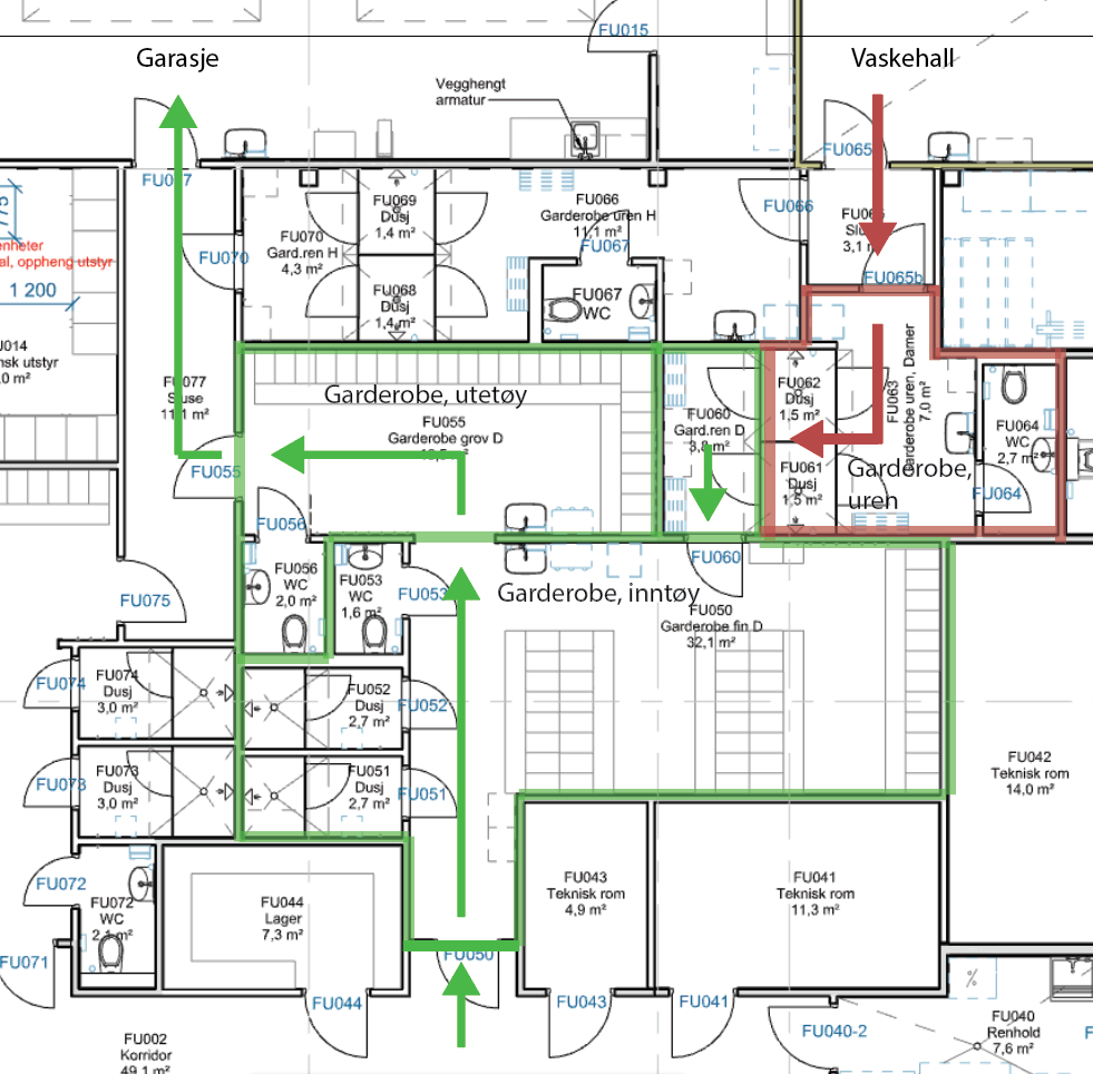
Garderobeløsning, rent og urent (2024)
Universitetssykehuset Nord-Norge HF - Narvik
3.7 AmbulansetjenesteSR.048.04 Garderobe, personalSR.033.00 DusjSR.198.00 WC

Gastro endoskopi lab (2014)
Nordlandssykehuset HF - Bodø
2A.10 Poliklinikk
Evaluert 2023-11-23

Gastro endoskopi lab (2006)
Vestre Viken HF - Bærum sykehus
2A.10 Poliklinikk

Gastro endoskopirom (2020)
Nordlandssykehuset HF - Bodø
2A.10 Poliklinikk
Evaluert 2023-09-07

Haukeland Universitetssjukehus, Helse Bergen HF
Helse Bergen HF - Haukeland universitetssjukehus
2A.12 Stråleterapi, foton og brachyterapi. Protonterapi.

Hemsley Cancer Center, Jerusalem, Israel
2A.12 Stråleterapi, foton og brachyterapi. Protonterapi.

Herlev Hospital, Danmark Løsningskonsept intensiv/overvåking (2022)
Herlev Hospital, Danmark - Danmark
1A.6 Intensiv1A.12 Intermediær

Intensiv (2020)
Nordlandssykehuset HF - Bodø
1A.6 Intensiv
Evaluert 2023-11-23

Intensiv og overvåking, løsningskonsept (2018)
Finnmarkssykehuset HF - Kirkenes
1A.6 Intensiv1A.12 Intermediær
Evaluert 2021-12-17

Intensiv og overvåking, somatikk (2018)
Finnmarkssykehuset HF - Kirkenes
1A.6 Intensiv1A.12 IntermediærSR.134.06 Sengerom, intensiv
Evaluert 2021-12-17

Intensiv, overvåking Nye Aker sykehus, Oslo universitetssykehus HF (2031)
Oslo universitetssykehus HF - Aker
1A.6 Intensiv1A.12 Intermediær

Intensiv, overvåking Sjukehuset Nordmøre og Romsdal (SNR), Helse Møre og Romsdal (2025)
Helse Møre og Romsdal HF - Hjelset
1A.6 IntensivSR.134.06 Sengerom, intensiv

Intensiv- og overvåkingsenhet (2014)
Nordlandssykehuset HF - Stokmarknes i Vesterålen
1A.6 Intensiv1A.12 IntermediærSR.134.06 Sengerom, intensiv
Evaluert 2018-06-29

Intensiv- og overvåkingsenheten Nye Rikshospitalet, Oslo universitetssykehus HF (2031)
Oslo universitetssykehus HF - Rikshospitalet
1A.6 Intensiv1A.12 Intermediær

Intensiv- og overvåkingsenheten, løsningskonsept (2024)
Finnmarksykehuset HF - Hammerfest
1A.6 Intensiv1A.12 Intermediær

Intensiv- og overvåkingsområder ved Nye SUS, Stavanger Universitetssykehus HF (2024)
Helse Stavanger HF - Stavanger Universitetssjukehus
1A.6 IntensivSR.134.06 Sengerom, intensiv

Intensivenhet Bygg Haugesund 2020, byggetrinn 1, Helse Fonna (2021)
Helse Fonna HF - Haugesund sjukehus
1A.6 Intensiv1A.12 Intermediær

Intensivenhet Nytt sykehus Drammen (2025)
Vestre Viken HF - Drammen sykehus
1A.6 Intensiv1A.12 Intermediær

Intensivrom (2020)
Nordlandssykehuset HF - Bodø
1A.6 IntensivSR.134.06 Sengerom, intensiv
Evaluert 2023-11-23

Intensivrom (2014)
Nordlandssykehuset HF - Stokmarknes i Vesterålen
1A.6 IntensivSR.134.06 Sengerom, intensiv
Evaluert 2018-06-29

Intensivrom (2017)
Universitetssykehuset Nord-Norge HF - Tromsø
1A.6 IntensivSR.134.06 Sengerom, intensiv
Evaluert 2022-02-08

Intensivrom (2014)
Nordlandssykehuset HF - Stokmarknes i Vesterålen
1A.6 IntensivSR.134.06 Sengerom, intensiv
Evaluert 2018-06-29

Intensivrom somatikk (2022)
Herlev Hospital, Danmark - Danmark
1A.6 Intensiv

Intensivrom ved ByggHaugesund2020, byggetrinn 1, Helse Fonna (2021)
Helse Fonna HF - Haugesund sjukehus
1A.6 IntensivSR.134.06 Sengerom, intensiv

Intensivrom ved St. Olav (2009)
St. Olavs Hospital HF - Øya
1A.6 IntensivSR.134.06 Sengerom, intensiv

Intensivrom, Nytt sykehus Drammen (2025)
Vestre Viken HF - Drammen sykehus
1A.6 IntensivSR.134.06 Sengerom, intensiv

Intensivrom, Sjukehuset Nordmøre og Romsdal (SNR), Hjelset (2025)
Helse Møre og Romsdal HF - Hjelset
1A.6 IntensivSR.134.06 Sengerom, intensiv

Intensivrom, St. Olavs hospital (2009)
St. Olavs Hospital HF - Øya
1A.6 IntensivSR.134.06 Sengerom, intensiv

Kirurgisk poliklinikk
Vestre Viken HF - Bærum sykehus
2A.10 Poliklinikk

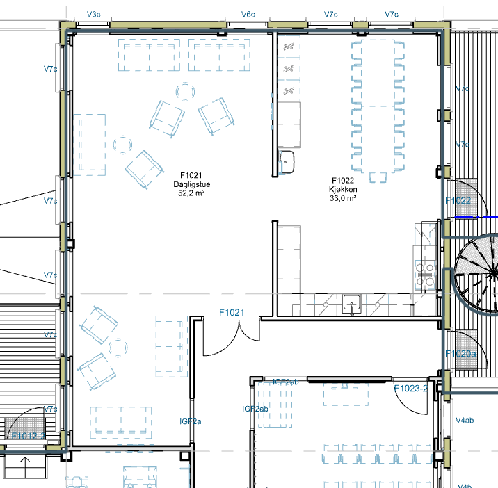
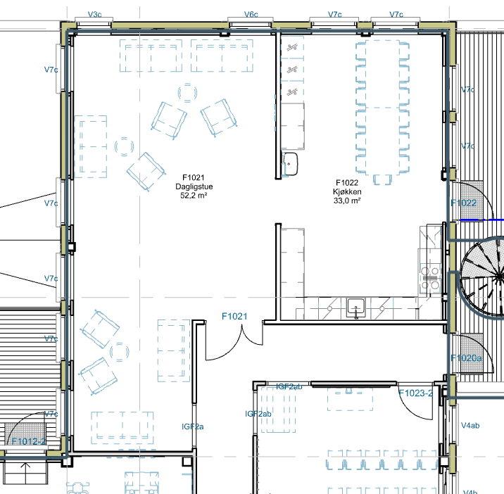
Kjøkken og dagligstue (-2)
Universitetssykehuset Nord-Norge HF - Skibotn

Kjøkkenfunksjoner Nye Drammen sykehus (2025)
Vestre Viken HF - Drammen sykehus
4.10 SentralkjøkkenSR.071.02 Kjøkken, produksjonSR.071.05 Kjøkken

Kjøkkenfunksjoner St. Olavs hospital (2011)
St. Olavs Hospital HF - Øya
4.10 SentralkjøkkenSR.071.02 Kjøkken, produksjonSR.071.05 Kjøkken

Kontor eller stillerom for sosionom PHV (2012)
Helse Sør-Øst - Sykehuset Østfold Kalnes

Logistikksenter Helse Midt-Norge
4.11 Sentrallager

Lydmiljø - gode eksempler (2023)
Sykehuset Sørlandet HF - Kristiansand
1B.4 Normalsengeområde

Løsningskonsept Intensiv overvåking (2018)
Universitetssykehuset Nord-Norge HF - Tromsø
1A.6 Intensiv1A.12 Intermediær
Evaluert 2022-02-08

Løsningskonsept intensiv og overvåking (2018)
Universitetssykehuset Nord-Norge HF - Tromsø
1A.6 Intensiv1A.12 Intermediær
Evaluert 2022-02-08

Løsningskonsept intensiv/overvåking (2014)
Nordlandssykehuset HF - Stokmarknes i Vesterålen
1A.6 Intensiv1A.12 Intermediær
Evaluert 2018-06-29

Løsningskonsept intensiv/overvåking (2014)
Sykehuset Østfold HF - Kalnes
1A.6 Intensiv1A.12 Intermediær
Evaluert 2020-03-26

Løsningskonsept intensiv/overvåking (2020)
Nordlandssykehuset HF - Bodø
1A.6 Intensiv
Evaluert 2023-11-23

Løsningskonsept med flere driftsmodeller (2020)
Nordlandssykehuset HF - Bodø
2A.10 Poliklinikk2A.14 Dagområde
Evaluert 2023-09-07

Løsningskonsept med separate sengebygg og behandlingsbygg ved Kalnes, Sykehuset Østfold HF (ferdig 2015) (2015)
Sykehuset Østfold HF - Moss
1A.9 Normalsengeområde
Løsningskonsept ved Nye UNN Narvik sykehus, UNN HF (2024)
Universitetssykehuset Nord-Norge HF - Narvik
1A.9 Normalsengeområde

Løsningskonsept, separate sengebygg og behandlingsbygg, Nye Drammen sykehus (2025)
Vestre Viken HF - Drammen sykehus
1A.9 Normalsengeområde

Løsningskonsept, Nye Rikshospitalet, Oslo universitetssykehus HF (2031)
Oslo universitetssykehus HF - Rikshospitalet
1A.9 Normalsengeområde

Løsningskonsept, sengeområde, Nye Aker sykehus, Oslo universitetssykehus HF (2031)
Oslo universitetssykehus HF - Aker
1A.9 Normalsengeområde

Løsningskonsept, sengeområder over behandlingsbase, (2014)
Nordlandssykehuset HF - Stokmarknes i Vesterålen
1A.9 Normalsengeområde
Evaluert 2018-06-29

Løsningskonsept, sengeområder over behandlingsbase, St. Olavs hospital HF (2009)
St. Olavs Hospital HF - Øya
1A.9 Normalsengeområde

Løsningskonsept, sengeområder over behandlingsbase, Herlev hospital, København, Danmark (Ferdig 2021/22) (2022)
Herlev Hospital, Danmark - Danmark
1A.9 Normalsengeområde

Løsningskonsept, sengeområder over behandlingsbase, Nye Hammerfest Sykehus (2024)
Finnmarksykehuset HF - Hammerfest
1A.9 Normalsengeområde

Løsningskonsept, sengeområder over behandlingsbase, Sjukehuset Nordmøre og Romsdal (2025)
Helse Møre og Romsdal HF - Hjelset
1A.9 Normalsengeområde

Løsningskonsept, separate sengebygg og behandlingsbygg, Akershus universitetssykehus (Ahus) (2008)
Akershus universitetssykehus HF - Nordbyhagen
1A.9 Normalsengeområde
Evaluert 2023-12-26

Løsningskonsept, separate sengebygg og behandlingsbygg, Nye SUS, Stavanger Universitetssykehus HF (2025)
Helse Stavanger HF - Stavanger Universitetssjukehus
1A.9 Normalsengeområde

Løsningskonsepter for generelle poliklinikkområder eller bygg (2015)
Sykehuset Østfold HF - Kalnes
2B.5 Poliklinikk
Evaluert 2020-03-26

MC Erasmus University Hospital, Nederland Løsningskonsept intensiv/overvåking (2018)
Erasmus MC Hospital, Rotterdam NL - Rotterdam Nederland
1A.6 Intensiv1A.12 Intermediær

Maggie’s

Medisinrom på St. Olavs hopsital (2009)
St. Olavs Hospital HF - Øya
1A.9 NormalsengeområdeSR.096.00 Medisin

Medisinrom, nye Rikshospitalet, OUS (2031)
Oslo universitetssykehus HF - Rikshospitalet
1A.9 NormalsengeområdeSR.096.00 Medisin

Mottaksmodell bildediagnostikk (1998)
Helse Bergen HF - Haukeland universitetssjukehus
2A.11 Radiologi
Nordlandssykehuset i Bodø
Nordlandssykehuset HF - Bodø
2A.12 Stråleterapi, foton og brachyterapi. Protonterapi.
Evaluert 2023-09-07

Nya sjukhusområdet Malmø (Intensiv ferdig 2024) (2010)
Skånes universitetssjukhus Malmø - Malmø, Sverige
1A.12 Intermediær1A.6 Intensiv

Nye Drammen sykehus (2025)
Vestre Viken HF - Drammen sykehus
4.1 Avfallshåndtering4.15 TøyhåndteringSR.010.00 Avfall, miljøstasjon

Nye Karolinska, Solna Løsningskonsept intensiv/overvåking
Nye Karolinska, Stockholm, Sverige - Stockholm, Sverige
1A.6 Intensiv

Nye Stavanger Universitetssjukehus (2025)
Helse Stavanger HF - Stavanger Universitetssjukehus
4.1 Avfallshåndtering4.15 TøyhåndteringSR.010.00 Avfall, miljøstasjon

Nye UNN Narvik (2024)
Universitetssykehuset Nord-Norge HF - Narvik
4.1 Avfallshåndtering4.15 TøyhåndteringSR.010.00 Avfall, miljøstasjon

Nye UNN Narvik, Universitetssykehuset Nord-Norge HF (2024)
Universitetssykehuset Nord-Norge HF - Narvik
4.10 SentralkjøkkenSR.071.02 Kjøkken, produksjonSR.071.05 Kjøkken

Nytt Stavanger Universitetssykehus, SUS
Helse Stavanger HF - Stavanger Universitetssjukehus
2A.12 Stråleterapi, foton og brachyterapi. Protonterapi.

OncoCubus, Recklinghausen, Tyskland
OncoCubus - Recklinghausen, Tyskland
2A.12 Stråleterapi, foton og brachyterapi. Protonterapi.

Operasjon Hammerfest (2024)
Finnmarksykehuset HF - Hammerfest
2A.9 OperasjonSR.106.00 Operasjon
Operasjonsrom ØNH-poliklinikk (2014)
Nordlandssykehuset HF - Bodø
2A.9 Operasjon
Evaluert 2023-09-07

Overnattingsrom med tilhørende WC (2024)
Universitetssykehuset Nord-Norge HF - Narvik
3.7 AmbulansetjenesteSR.112.01 Overnatting, personal

Pallelager Logistikksenter Helse Midt-Norge

Pasienthager (2023)
Sykehuset Sørlandet HF - Kristiansand
11.5 Utomhus opphold

Pasientromsdører med lås og adgangskontroll (2023)
Sykehuset Sørlandet HF - Kristiansand
1B.4 NormalsengeområdeSR.134.02 Sengerom, skjerming, PHV/TSBSR.134.04 Sengerom, PHV/TSBSR.134.05 Sengerom, stort, PHV/TSB

Plassering av stråleterapienheten ved Sørlandet sykehus HF, Kristiansand
Sykehuset Sørlandet HF - Kristiansand
2A.12 Stråleterapi, foton og brachyterapi. Protonterapi.

Plassering av stråleterapienheten ved nytt sykehus i Drammen (2025)
Vestre Viken HF - Drammen sykehus
2A.12 Stråleterapi, foton og brachyterapi. Protonterapi.

Plassering av stråleterapienheten ved Ålesund sjukehus, Helse Møre og Romsdal
Helse Møre og Romsdal HF - Ålesund
2A.12 Stråleterapi, foton og brachyterapi. Protonterapi.

Poliklinikk - elastisitet (2024)
Finnmarksykehuset HF - Hammerfest
2B.5 Poliklinikk

Poliklinikk - fleksibilitet (2025)
Helse Stavanger HF - Stavanger Universitetssjukehus
2A.10 Poliklinikk

Poliklinikk - generalitet (2024)
Universitetssykehuset Nord-Norge HF - Narvik
2A.10 Poliklinikk

Poliklinikk med enkel- og dobbelkorridor (2015)
Sykehuset Østfold HF - Kalnes
2B.5 Poliklinikk
Evaluert 2020-03-26
Poliklinikk med enkelkorridor somatikk (2018)
Finnmarkssykehuset HF - Kirkenes
2B.5 Poliklinikk
Evaluert 2012-12-17

Poliklinikk med to operasjonsrom (2017)
Universitetssykehuset Nord-Norge HF - Tromsø
2A.10 Poliklinikk
Evaluert 2022-02-08

Poliklinikkene og dagområdene Nyt Hospital Nordsjælland, Danmark (2026)
Nyt Hospital Nord-Sjælland, Hillerød, Danmark - Hillerød, Danmark
2A.10 Poliklinikk

Poliklinikker og dagområde – løsningskonsept (2015)
Sykehuset Østfold HF - Kalnes
2A.10 Poliklinikk
Evaluert 2020-03-26

Poliklinikker og dagområder (2014)
Nordlandssykehuset HF - Stokmarknes i Vesterålen
2A.10 Poliklinikk
Evaluert 2018-06-29

Poliklinikker – løsningskonsept (2017)
Universitetssykehuset Nord-Norge HF - Tromsø
2A.10 Poliklinikk
Evaluert 2022-02-08

Poliklinikker – løsningskonsept (2017)
Universitetssykehuset Nord-Norge HF - Tromsø
2A.10 Poliklinikk
Evaluert 2022-02-08

Poliklinikker, løsningskonsept (2018)
Finnmarkssykehuset HF - Kirkenes
2A.10 Poliklinikk
Evaluert 2021-12-17

Poliklinikkområde A-fløy UNN Tromsø med sone for pasienter og sone for personell. Kilde: Rambøll Arkitekter/PKA 17.06.2016, tilrettelagt av Sykehusbygg HF (2017)
Universitetssykehuset Nord-Norge HF - Tromsø
2A.10 Poliklinikk
Poliklinikkområde med soneinndeling for pasienter og personell. (2017)
Universitetssykehuset Nord-Norge HF - Tromsø
2A.10 Poliklinikk
Evaluert 2022-02-08

Prøvelanding, SAR Queen ved Nye SUS 13.6.23 (2025)
Helse Stavanger HF - Stavanger Universitetssjukehus
11.3 Helikopterplass

Radiumhospitalet, Oslo Universitetssykehus HF
Oslo universitetssykehus HF - Nye Radiumhospitalet
2A.12 Stråleterapi, foton og brachyterapi. Protonterapi.
Romprogram Vare- og distribusjonssentral Nye Aker sykehus

Rondell for utlevering av rent tøy
Nordlandssykehuset HF - Bodø

Royal Papworth England Løsningskonsept intensiv/overvåking (2018)
Royal Papworth Hospital, Cambridge, England - Cambridge, England
1A.6 Intensiv1A.12 Intermediær

Samtale-/testrom for ergoterapi og fysioterapi (2014)
Nordlandssykehuset HF - Stokmarknes i Vesterålen
2A.10 Poliklinikk2A.5 Kliniske støttefunksjoner2A.3 Ergo- og Fysioterapi

Sengehåndtering Nye Stavanger universitetssjukehus (2025)
Helse Stavanger HF - Stavanger Universitetssjukehus
4.9 Sengehåndtering

Sengehåndtering Nye UNN Narvik sykehus (2024)
Universitetssykehuset Nord-Norge HF - Narvik
4.9 Sengehåndtering

Sengehåndtering Regionshospitalet Region Midtjylland (Danmark) (2022)
4.9 Sengehåndtering

Sengehåndtering Sjukehuset Nordmøre og Romsdal (2025)
Helse Møre og Romsdal HF - Hjelset
4.9 Sengehåndtering

Sengeområde (2014)
Nordlandssykehuset HF - Stokmarknes i Vesterålen
1A.9 Normalsengeområde
Evaluert 2018-06-29
Sengeområde i Kalnes, Sykehuset Østfold HF (2015)
Sykehuset Østfold HF - Moss
1A.9 Normalsengeområde
Sengeområde i Ringerike sykehus, Vestre Viken HF (2005)
Vestre Viken HF - Ringerike sykehus
1A.9 Normalsengeområde
Sengeområde i St. Olavs hospital I Trondheim, St. Olavs hospital HF (2009)
St. Olavs Hospital HF - Øya
1A.9 Normalsengeområde

Sengeområde, løsningskonsept (2018)
Finnmarkssykehuset HF - Kirkenes
1A.9 Normalsengeområde
Evaluert 2021-12-17

Sengeområder, Akershus universitetssykehus, Ahus HF (2008)
Akershus universitetssykehus HF - Nordbyhagen
1A.9 Normalsengeområde

Sengeområder, Bodø sykehus (2020)
Nordlandssykehuset HF - Bodø
1A.9 Normalsengeområde
Evaluert 2023-09-07

Sengeområder, Herlev hospital, København (2022)
Herlev Hospital, Danmark - Danmark
1A.9 Normalsengeområde

Sengeområder, Nye Aker, Oslo Universitetssykehus HF (2031)
Oslo universitetssykehus HF - Aker
1A.9 Normalsengeområde

Sengeområder, Nye Drammen sykehus (NDS), Vestre Viken HF (2025)
Vestre Viken HF - Drammen sykehus
1A.9 Normalsengeområde

Sengeområder, Nye Hammerfest sykehus (2024)
Finnmarksykehuset HF - Hammerfest
1A.9 Normalsengeområde

Sengeområder, Nye Rikshospitalet, Oslo universitetssykehus HF (2031)
Oslo universitetssykehus HF - Rikshospitalet
1A.9 Normalsengeområde

Sengeområder, Nye Stavanger universitetssjukehus (Nye SUS), Stavanger universitetssykehus HF (2025)
Helse Stavanger HF - Stavanger Universitetssjukehus
1A.9 Normalsengeområde

Sengeområder, Nye UNN Narvik (2024)
Universitetssykehuset Nord-Norge HF - Narvik
1A.9 Normalsengeområde

Sengeområder, Nyt Hospital Nord-Sjælland, Hillerød, Danmark (2026)
Nyt Hospital Nord-Sjælland, Hillerød, Danmark - Hillerød, Danmark
1A.9 Normalsengeområde

Sengeområder, Royal Papworth Hospital, Cambridge, England (2019)
Royal Papworth Hospital, Cambridge, England - Cambridge, England
1A.9 Normalsengeområde

Sengeområder, Sjukehuset Nordmøre og Romsdal (SNR) (2025)
Helse Møre og Romsdal HF - Hjelset
1A.9 Normalsengeområde

Sengeområder, Visby Lasarett, Gotland, Sverige (1995)
Visby Lasarett, Gotland, Sverige - Gotland, Sverige
1A.9 Normalsengeområde

Sengeområder, løsningskonsept (2018)
Finnmarkssykehuset HF - Kirkenes
1A.9 Normalsengeområde
Evaluert 2021-12-17

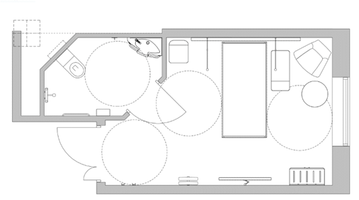
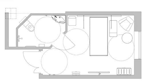
Sengerom (2014)
Nordlandssykehuset HF - Stokmarknes i Vesterålen
1A.9 NormalsengeområdeSR.134.00 Sengerom, somatikk
Evaluert 2018-06-29

Sengerom (2015)
Sykehuset Østfold HF - Kalnes
1A.9 NormalsengeområdeSR.134.00 Sengerom, somatikk
Evaluert 2020-03-26

Sengerom ved Nye Hammerfest sykehus (2024)
Finnmarksykehuset HF - Hammerfest
1A.9 NormalsengeområdeSR.134.00 Sengerom, somatikk

Sengerom ved Ringerike sykehus, Vestre Viken HF (2005)
Vestre Viken HF - Ringerike sykehus
1A.9 NormalsengeområdeSR.134.00 Sengerom, somatikk

Sengerom ved Sykehuset i Vestfold, Tønsberg (2021)
Sykehuset i Vestfold HF - Tønsberg
1A.9 NormalsengeområdeSR.134.00 Sengerom, somatikk

Sengerom ved nye Aker (2031)
Oslo universitetssykehus HF - Aker
1A.9 NormalsengeområdeSR.134.00 Sengerom, somatikk

Sengerom, Akershus universitetssykehus (Ahus) (2008)
Akershus universitetssykehus HF - Nordbyhagen
1A.9 NormalsengeområdeSR.134.00 Sengerom, somatikk

Sengerom, Nytt klinikk- og protonbygg, Radiumhospitalet (2024)
Oslo universitetssykehus HF - Nye Radiumhospitalet
1A.9 NormalsengeområdeSR.134.00 Sengerom, somatikk

Sengerom, intensiv (2015)
Sykehuset Østfold HF - Kalnes
1A.6 IntensivSR.134.06 Sengerom, intensiv
Evaluert 2020-03-26

Sengerom, intensiv (2002)
MC Erasmus University Hospital - Rotterdam, Nederland
1A.6 IntensivSR.134.06 Sengerom, intensiv

Sengerom, intensiv (2018)
Finnmarkssykehuset HF - Kirkenes
1A.6 IntensivSR.134.06 Sengerom, intensiv
Evaluert 2021-12-17

Sengerom, nye UNN Narvik sykehus (2024)
Universitetssykehuset Nord-Norge HF - Narvik
1A.9 NormalsengeområdeSR.134.00 Sengerom, somatikk

Sengerom, nytt sykehus Drammen (2025)
Vestre Viken HF - Bærum sykehus
1A.9 NormalsengeområdeSR.134.00 Sengerom, somatikk

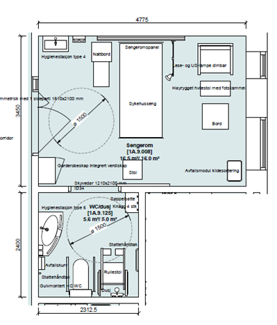
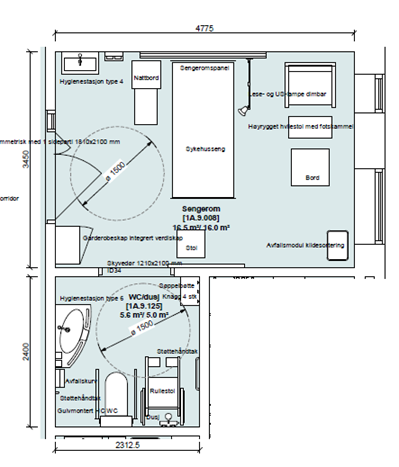
Sengerom, somatikk (2025)
Helse Stavanger HF - Stavanger Universitetssjukehus
1A.9 NormalsengeområdeSR.134.00 Sengerom, somatikk

Sengerom, somatikk (2025)
Helse Møre og Romsdal HF - Hjelset
1A.9 NormalsengeområdeSR.134.00 Sengerom, somatikk

Sengerom, somatikk (2018)
Finnmarkssykehuset HF - Kirkenes
1A.9 NormalsengeområdeSR.134.00 Sengerom, somatikk
Evaluert 2021-12-17

Sengerom, somatikk (2009)
St. Olavs Hospital HF - Øya
1A.9 NormalsengeområdeSR.134.00 Sengerom, somatikk

Sjukehuset Nordmøre- og Romsdal, Hjelset (2025)
Helse Møre og Romsdal HF - Hjelset
4.1 Avfallshåndtering4.15 TøyhåndteringSR.010.00 Avfall, miljøstasjon

Skjermet inngang PHV, Levanger (2016)
Helse Nord-Trøndelag HF - Levanger
3.7 Ambulansetjeneste

Skjermet inngang PHV, SNR (2024)
Helse Møre og Romsdal HF - Hjelset
3.7 Ambulansetjeneste

Spiserom, kjøkken og dagligstue (2024)
Universitetssykehuset Nord-Norge HF - Narvik
3.7 Ambulansetjeneste

St. Olavs Hospital HF
St. Olavs Hospital HF - Øya
2A.12 Stråleterapi, foton og brachyterapi. Protonterapi.

St. Olavs Hospital løsningskonsept intensiv/overvåking (2013)
St. Olavs Hospital HF - Øya
1A.6 Intensiv

St. Olavs hospital, eksempel løsning (2009)
St. Olavs Hospital HF - Øya
1A.6 Intensiv1A.12 Intermediær

Sterilsentral Nye Aker sykehus
Oslo universitetssykehus HF - Aker
4.13 Sterilsentral

Sterilsentral Nye UNN Narvik (2024)
Universitetssykehuset Nord-Norge HF - Narvik
4.13 Sterilsentral

Stråleenheten ved Sykehuset i Innlandet, Gjøvik
Sykehuset Innlandet HF - Gjøvik
2A.12 Stråleterapi, foton og brachyterapi. Protonterapi.

Stråleterapi ved Haukeland Sykehus
Helse Bergen HF - Haukeland universitetssjukehus
2A.12 Stråleterapi, foton og brachyterapi. Protonterapi.

Stråleterapienhet
Universitetssykehuset Nord-Norge HF - Tromsø
2A.12 Stråleterapi, foton og brachyterapi. Protonterapi.
Evaluert 2022-02-08

Stråleterapienhet ved Radiumhospitalet, Oslo Universitetssykehus HF
Oslo universitetssykehus HF - Nye Radiumhospitalet
2A.12 Stråleterapi, foton og brachyterapi. Protonterapi.

Støtterom intensiv-overvåking (2017)
Universitetssykehuset Nord-Norge HF - Tromsø
1A.6 Intensiv1A.12 Intermediær
Evaluert 2022-02-08

Støtterom intensiv-overvåking St. Olavs hospital (2009)
St. Olavs Hospital HF - Øya
1A.6 Intensiv1A.12 Intermediær

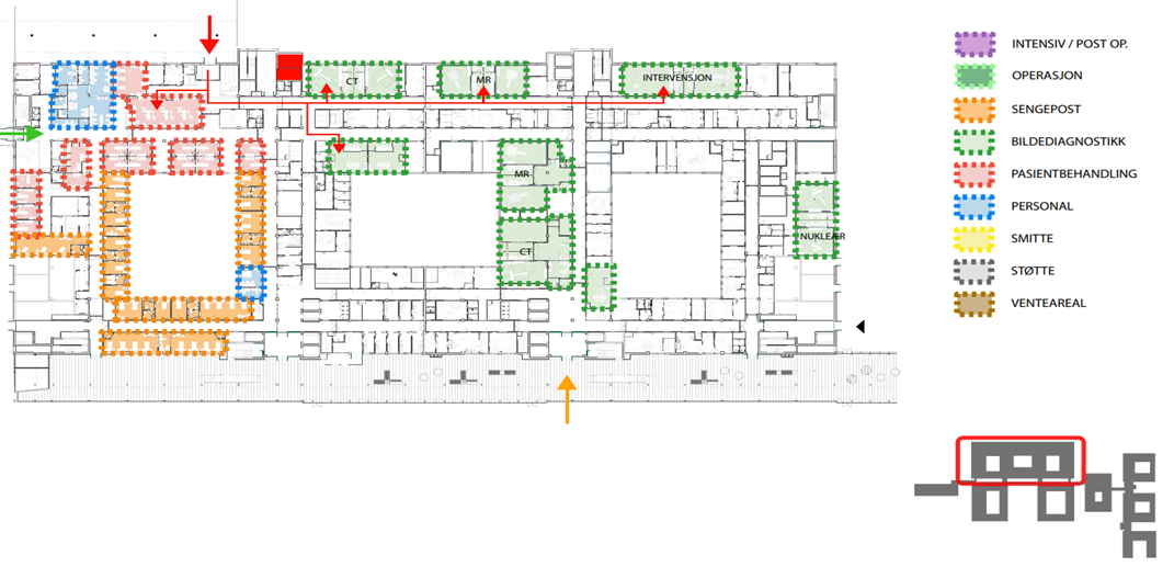
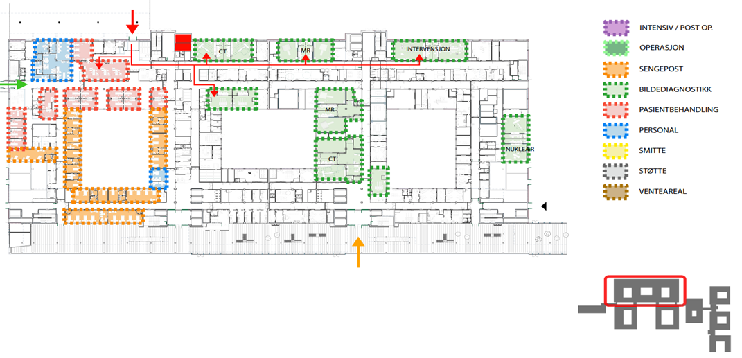
Sykehus med ulike bygningstypologier (2025)
Vestre Viken HF - Drammen sykehus
2A.10 Poliklinikk2A.14 Dagområde

Sykehuset Gjøvik, Sykehuset Innlandet HF
Sykehuset Innlandet HF - Gjøvik
2A.12 Stråleterapi, foton og brachyterapi. Protonterapi.

Sykehusskole - Nytt sykehus Drammen (2025)
Vestre Viken HF - Drammen sykehus
7.9 Skole og barnehage

Sørlandet sykehus Kristiansand, Sørlandet Sykehus HF
Sykehuset Sørlandet HF - Kristiansand
2A.12 Stråleterapi, foton og brachyterapi. Protonterapi.

Treningskjøkken i sengepost PHV (2015)
Helse Sør-Øst - Sykehuset Østfold Kalnes

Treningskjøkken i sengepost PHV (2015)
Helse Sør-Øst - Sykehuset Østfold Kalnes
1B.4 Normalsengeområde

Treningsrom og gymsal for fysio og ergo PHV (2015)
Helse Sør-Øst - Sykehuset Østfold Kalnes
2A.3 Ergo- og Fysioterapi2A.5 Kliniske støttefunksjoner

Tøyhåndtering Nye Aker Sykehus
Oslo universitetssykehus HF - Aker
4.15 Tøyhåndtering4.14 Logistikk, transport og portør

Tøysentral Nye UNN Narvik (2024)
Universitetssykehuset Nord-Norge HF - Narvik
4.15 Tøyhåndtering

UNN Tromsø
Universitetssykehuset Nord-Norge HF - Tromsø
2A.12 Stråleterapi, foton og brachyterapi. Protonterapi.

Utforming av medisinnisjer og -rom (2031)
Oslo universitetssykehus HF - Rikshospitalet
2A.1 Akuttmottak2A.11 Radiologi2A.14 Dagområde2A.9 Operasjon2A.7 Oppvåkning1A.6 Intensiv1A.12 Intermediær1A.8 Nyfødtintensiv1A.1 Barnesengeområde1A.2 Barneintensiv1A.9 Normalsengeområde
Utforming av overvåkingsrom (2014)
Sykehuset Østfold HF - Kalnes
1A.12 Intermediær1A.6 Intensiv
Evaluert 2020-03-26

Utforming av overvåkingsrom (2017)
Universitetssykehuset Nord-Norge HF - Tromsø
1A.6 Intensiv1A.12 Intermediær
Evaluert 2022-02-08

Utforming av overvåkingsrom (2017)
Universitetssykehuset Nord-Norge HF - Tromsø
1A.6 Intensiv1A.12 IntermediærSR.134.06 Sengerom, intensiv
Evaluert 2022-02-08
Valg av utstyr på pasientbad (2023)
Sykehuset Sørlandet HF - Kristiansand
1B.4 NormalsengeområdeSR.011.09 Bad, PHV/TSB

Vare- og distribusjonssentral, Nye Aker sykehus
Oslo universitetssykehus HF - Aker
4.14 Logistikk, transport og portør

Varelagerheis (2025)
Helse Stavanger HF - Stavanger Universitetssjukehus
4.11 Sentrallager

Varemottak Logistikksenter Helse Midt-Norge

Vertikal driftsmodell og løsningskonsept (2008)
Akershus universitetssykehus HF - Nordbyhagen
2A.10 Poliklinikk2A.14 Dagområde

Vertikal driftsmodell og løsningskonsept (2013)
St. Olavs Hospital HF - Øya
2A.10 Poliklinikk2A.14 Dagområde

Vestibyle - utreiseområde - Adkomstbygg
Vestre Viken HF - Drammen sykehus
7.6 Pasientinformasjon
Virtuelle sykehuset, digitale tjenester og forskning, Vestre Viken (2025)
Vestre Viken HF - Drammen sykehus
2A.10 Poliklinikk2A.14 Dagområde

Ålesund sjukehus, Helse Møre og Romsdal
Helse Møre og Romsdal HF - Ålesund
2A.12 Stråleterapi, foton og brachyterapi. Protonterapi.
