Løsningskonsept intensiv/overvåking (2014)
Nordlandssykehuset HF - Stokmarknes i Vesterålen
1A.6 Intensiv1A.12 Intermediær
| Sykehus/HF | Kapasitet intensiv | Kapasitet overvåking | Postoperativ overvåking | Ferdig bygget |
|---|---|---|---|---|
| NLSH HF, Vesterålen | 4 (Bygget 5, tatt ibruk 4) | Felles intensiv/ overvåking | 10 (inkl dagkir område) | 2014 |

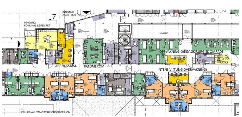
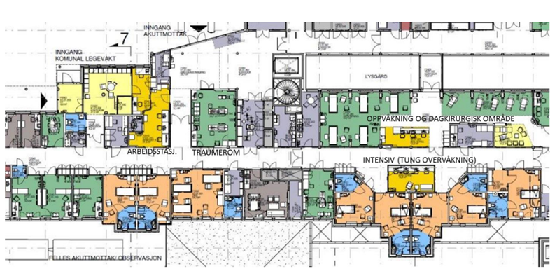
Sykehuset har H-fasong. Intensiv, operasjon, overvåking, fødeavdeling og akuttmottak er lokalisert på plan 2 sammen med sengeområdene.

I evalueringen kom det fram at plasseringen av enheten fungerte godt. Det er horisontal nærhet mellom akuttmottak, fem intensivrom og et område for overvåking etter operasjon. Dette gir muligheter for at personalet kan rullere mellom de tre enhetene. Dette var gjennomført i noe varierende grad på evalueringstidspunktet. Blant utfordringene var tilstrekkelig opplæring og/eller mengdetrening i de ulike enhetene.
Arbeidsplassene i arbeidsstasjonen vendte ut mot korridor og dagkirurgisk overvåking, hvilket var noe uhensiktsmessig.