Desinfeksjonsrom med 2-romsløsning (2024)
Universitetssykehuset Nord-Norge HF - Narvik
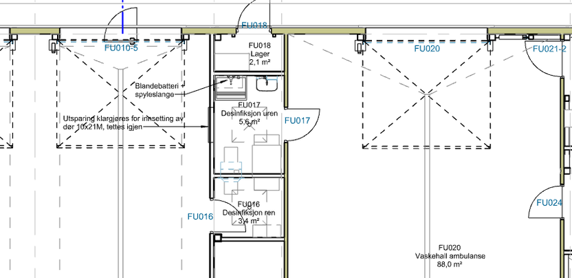
3.7 AmbulansetjenesteSR.028.01 Desinfeksjon, somatikk - Urent rom ( 2-roms løsning)SR.087.49 Desinfeksjon, Rent rom (2-roms løsning)
Ambulansestasjonen i Narvik har desinfeksjonsrom med 2-romsløsning hvor uren side har inngang fra vaskehallen og ren side har inngang fra garasjen. Denne løsninga er i tråd med kravene fra Arbeidstilsynet. Mellom rent og urent rom er det gjennomstikksdekontaminatorer. På uren side er det i tillegg håndvask og et stort skyllekar for å kunne bløtlegge utstyr som utrykningssekker som trenger rengjøring/desinfisering etter oppdrag. Ren side har skap til oppbevaring av rent utstyr.
