Garderobeløsning, rent og urent (2024)
Universitetssykehuset Nord-Norge HF - Narvik
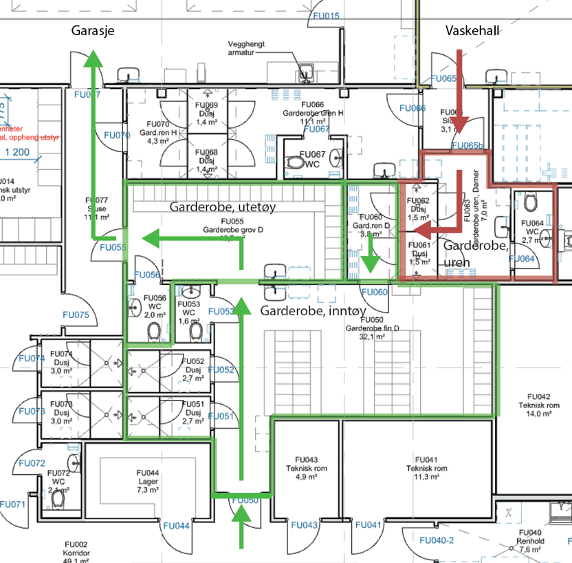
3.7 AmbulansetjenesteSR.048.04 Garderobe, personalSR.033.00 DusjSR.198.00 WC
Ambulansestasjonen i Narvik følger arbeidstilsynets krav om rene og urene garderober. Bildet viser ren og uren flyt. Eksemplet viser damegarderobene. Løsningen for herrer er tilsvarende.
I garderober, innetøy har hver ansatt 2 skap. 1 til privattøy og 1 til arbeidstøy. I garderobe, utetøy har de 1 skal til utendørs arbeidstøy. Utesko til uniformen oppbevares i garasjen for å unngå søl i garderobene. Private utesko oppbevares ved hovedinngangen for å holde stasjonen "skofri"
