Vare- og distribusjonssentral, Nye Aker sykehus
Oslo universitetssykehus HF - Aker
4.14 Logistikk, transport og portør
Nye Aker sykehus skal være et akuttsykehus med lokal-, område- og regionsfunksjoner for psykisk helsevern og tverrfaglig spesialisert behandling av ruslidelser. Nye Aker skal også ha lokalsykehusfunksjoner innen somatikk. I figuren nedenfor vises det et oversiktsbilde over Nye Aker Sykehus hvor vare- og distribusjonssentral er markert med en gul ring.


Vare- og distribusjonssentralen er programmert til 1.239 m2, mens prosjektert nettoareal er økt til 1.268 m2. Funksjonene som er planlagt i VDS omfatter varemottak, avfallshåndtering og mathåndtering.
Det er en betydelig flyt av rene/urene prosedyrevogner som skal til og fra Nye Aker sykehus for å reprosesseres i felles sterilsentral. Det gjelder prosedyrevogner fra Nye Rikshospitalet (NRH) sine nye operasjonsstuer og 10 operasjonsstuer i Radiumhospitalet (RAD). Det er en viktig forutsetning for dimensjoneringen av VDS. Les mer og få innsikt i skisser fra Nye Aker og funksjonsprosjektet for VDS og transport[1]Nye Aker medvirkning funksjonsprosjekt - møte 2 gruppe T- VDS og transport / portørhttps://www.oslo-universitetssykehus.no/4ab786/contentassets/3a2a9600d13c4367849a46da3dc06357/pulje-1/saksunderlag/t/mote-2/medvirkningsmote-2-gruppe-t---vds-nye-aker.pdf[2]Nye Aker medvirkning funksjonsprosjekt - møte 3 gruppe T- VDS og transport / portørhttps://www.oslo-universitetssykehus.no/48f856/contentassets/3a2a9600d13c4367849a46da3dc06357/pulje-1/saksunderlag/t/mote-3/nsa-vds-ts-medvirkning-mote-3-feb-2024.pdf.
Romprogram
I tabellen nedenfor er en oversikt over romprogrammet i Vare- og distribusjonssentralen (lastet fra dRofus 10.02.2025). Romprogrammet viser både programmert og prosjektert areal. Man kan se at det er betydelige arealer til lasteområder og oppstilling av vogner. VDS i dette eksemplet inneholder også avfallssentral med kildesortering. I andre prosjekter er avfallssentralen angitt som en egen forsyningsfunksjon selv om Avfallssentral og VDS er lokalisert ved siden av hverandre.

Det gjøres oppmerksom på at det kan være mindre avvik i skisser og beskrivelser fordi prosjektet er under utvikling.
Varegård
Utformingen av varegården rommer flere delfunksjoner (se figuren nedenfor): gasstanker og oppstillingsplasser for tankbil, oppstillingsplass for varebiler, biloppstilling for lastebiler/semitrailere og oppstillingsplasser for containere i forbindelse med avfallssentral. I tillegg er det manøvreringsarealer for tilkjøring til lasteramper.

I figuren nedenfor vises sporingsanalyse som er gjort for å sikre en tilfredsstillende trafikkavvikling på området. Sporingsanalysen medvirker til å sikre at trafikkavviklingen inne på området kan gjennomføres på en forsvarlig måte. I de to eksemplene i figuren nedenfor vises det at kjøretøyene (her en semitrailer på 17,5 m) kan kjøre ned rampen og svinge samtidig med at den kan rygge seg til og nå alle portene i VDS. Likeså viser sporingsanalysen til høyre (lilla farge) at tankbilen kan plassere seg på plass for å levere gasser til tankene, men at det krever at det ikke står biler som leverer til de to portene som er lengst til høyre i skissen. Dette er viktige momenter som må tas hensyn til i planlegging av drift og trafikkavvikling i varegården.
I sporingsanalysen er det benyttet semitrailer med en lengde på 17,5 m. Det er sikret adkomst og snuplass for vogntogene med lengde 22,0 meter i varegård. Portene er tilpasset semitrailere (som har størst snuradius).

Layout
Figuren nedenfor 6 viser layout av VDS med de forskjellige delfunksjonene. Vi ser at det er en avlastningssone lokalisert rett innenfor portene som er 15-17 m2. I bakkant av varemottaket er det arealer for varegruppene: avfall, urent tøy, rent tøy, mat osv. AGV’ene har fra kjøregangene tilgang til alle varegruppene for henting og levering av vogner.
Det er etablert en sluse for matvarer. I tillegg er det vegger omkring oppstillingsarealet/lageret for matvarer for å sikre tilstrekkelig hygiene. Dette er krav fra Mattilsynet.
Vaskelinjen er lokalisert sammen med VDS sammen med plasser for oppstilling av tomme urene vogner i forkant av vognvask og rene vogner etter vognvask. Det er viktig at dette området dimensjoneres tilstrekkelig slik at en unngår å ha tomme vogner rundt på forskjellige steder i VDS, noe som kan gjøre driften utfordrende.

Vognkapasiteter
Figuren nedenfor viser vognkapasiteten i hele anlegget (193 vogner) og i de enkelte delene av anlegget hvor det er planlagt plass for hovedvaregrupper som f.eks. rent tøy med 45 vognplasser.

Varemottak
Figuren nedenfor viser varemottaket og portene mer detaljert. I et stort og dypt areal som dette er, så er glasspanelene mellom portene en smart detalj for å slippe inn dagslyset og dermed bidra til et bedra fysisk arbeidsmiljø.

Vaskelinje
Figuren nedenfor viser vognvask med oppstilling av urene og rene vogner. I en situasjon med flere enn 12 rene vogner så kan de benytte lagerareal som er avsatt til lager for elektrisk truck/sniler. Det er viktig å planlegge med slike buffersoner for å ha en fleksibilitet i driften.

Dekontaminering av smitteavfall (Ozonator)
Figuren nedenfor viser plasseringen av dekontaminering av smitteavfallet. Skissen viser rommet ozonatoren er plassert i og hvordan avfallet etter behandling transporteres til container.

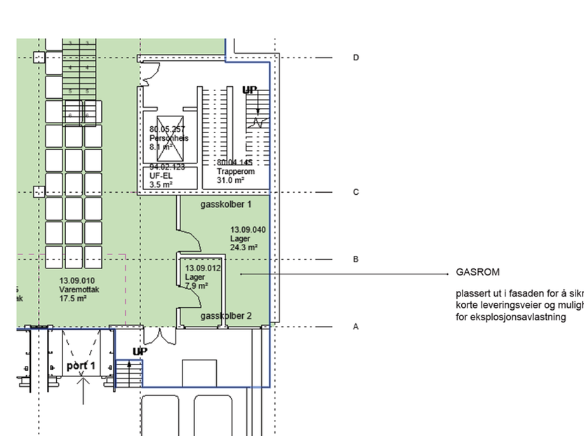
Lager gasser
Figuren nedenfor viser lager for gasser brennbare og ikke-brennbare gaser som er plassert ut mot fasaden med lett tilgang fra rampe for inn-/utlevering.

AGV-verksted og -ladestasjoner
Figuren nedenfor viser AGV-verkstedet og plasseringen i forhold til arealer for lading av AGV’er.
