Sengerom ved Nye Hammerfest sykehus (2024)
Finnmarksykehuset HF - Hammerfest
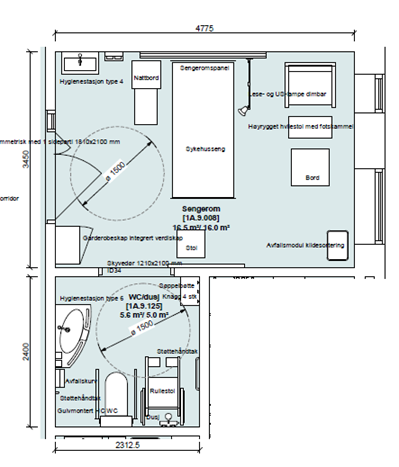
1A.9 NormalsengeområdeSR.134.00 Sengerom, somatikk
Sengerom ved Nye Hammerfest sykehus har standard ensengsrom på ca. 16 m2, 8 store ensengsrom på ca. 19,3 m2 og 7 tosengsrom på ca. 30 m2. Det er 6 kontaktsmitteisolat tilknyttet senge-område, og 1 på intensiv.
Bad er plassert mellom sengerom, som gir godt innsyn fra korridor uten å gå inn i rommet.
Håndvask på rommet.
Horisontal sykeromskanal.
To-fløyet dør inn til rommet, skyvedør inn til bad.
