Sengerom, intensiv (2018)
Finnmarkssykehuset HF - Kirkenes
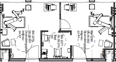
1A.6 IntensivSR.134.06 Sengerom, intensiv

Kirkenes sykehus har 4 intensiv/ overvåkingsrom, i tillegg til et luftsmitteisolat. Ensengsrom med dør mellom to og to rom. To rom deler et bad.
Finnmarkssykehuset HF - Kirkenes
1A.6 IntensivSR.134.06 Sengerom, intensiv

Kirkenes sykehus har 4 intensiv/ overvåkingsrom, i tillegg til et luftsmitteisolat. Ensengsrom med dør mellom to og to rom. To rom deler et bad.