St. Olavs Hospital løsningskonsept intensiv/overvåking (2013)
St. Olavs Hospital HF - Øya
1A.6 Intensiv
| Sykehus/HF | Kapasitet | Kapasitet overvåking | Kapasitet postoperativ overvåking | Ferdig bygget |
|---|---|---|---|---|
| St. Olavs hospital HF | 41 | 27 | 2013 (2005-2013) | |
| Akutt- hjertelunge senteret | 29 | 4 (thorax) 8 (hjertemed) 4 (gastro) 11 (lunge) | 11 | |
| Nevrosenteret | 7 (kombinert k2 og k3) | |||
| Kvinne-barn senteret | 5 (kombinert k2 og k3) |
St. Olavs hospital ble planlagt etter en organbasert sentermodell, dvs. at f.eks. gastromedisin og -kirurgi er samlokalisert i et bygg, og hjertemedisin og hjertekirurgi i et annet bygg.
Hovedintensiv er lokalisert i Akutt-/Hjerte-lunge senteret på plan 2 med nærhet til akutt opersjonsstuer, thorax operasjon, karkirurgi og angiografi. Intensiv er en organisatorisk enhet sammen med thoraxintensiv og postoperativ overvåking I alle kliniske bygg som har kirurgisk virksomhet er operasjon og intensiv på plan 2.

Det er overvåkingsenhet for hjertemedisin, lungemedisin, gastrokirugi og karkirurgi lokalisert i Akutt-/hjerte-lungesenteret AHL), i tillegg til intensiv- og overvåkingsenheter i Kvinne-barn senteret og Nevrosenteret.
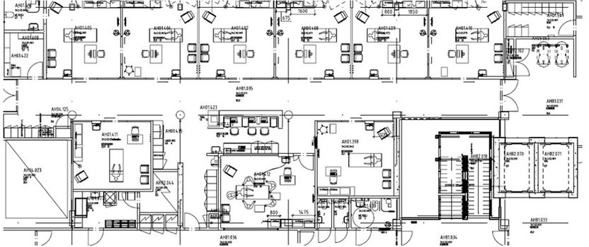
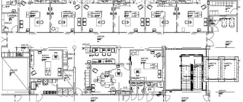
Intensivenheten i Akutt- hjertelungesenteret, St. Olavs hospital er utformet med dobbeltkorridor der intensivrommene er på hver side av en korridor, mens den andre korridoren i hovedsak består av kontorer, møterom og pårørenderom.


Hovedintensiv med 18 intensivrom er delt opp i to tun, som hver består av 9 intensivrom. 6 intensivrom er plassert mot ytre fasade og 3 rom i midtkjernen. I tillegg er det støtterom. Det er en sentral arbeidsstasjon i hvert tun. Det er adgangskontroll til avdelingen og ingen gjennomgangstrafikk.

De tre pasientrommene i midtkjernen er uten dagslys, de var planlagt som mottaksrom og akuttrom, men er tatt i bruk til andre funksjoner. Ett er tatt i bruk til driftskoordinator på grunn av behov for skjermet arbeid, samt at rommet har funksjon som opphold/pauserom for personalet på ubekvem arbeidstid. Et annet intensivrom er lager for medisinsk teknisk utstyr og infusjonsvæsker.
Alle intensivrommene kan brukes til pasientbehandling ved behov.
Arbeidsstasjon i korridor er plassert i midtkjernen, og brukes som dokumentasjonsplass for leger og base for tverrfaglig samarbeid. I tillegg har den en funksjon som en uformell møteplass.

Personalet opplever at korridoren gir en god oversikt i avdelingen. De innvendige persiennene i glassene på skyvedørene gir et innblikk i aktiviteten på intensivrommet eller fra rommet til korridor.
Arbeidsstasjonen er åpen og sentralt plassert i korridoren.
I forlengelsen av Hovedintensiv ved St. Olavs hospital er Thorax intensiv lokalisert. Thorax intensiv har 8 intensivplasser og 3 overvåkingsrom. Denne enheten er utformet som en «U», dvs. intensivrommene er plassert mot ytre fasade rundt en sentral arbeidsstasjon.


Figuren viser arbeidsstasjon med senger plassert rundt. Pasientrommene er utformet etter det samme konsept som Hovedintensiv.
Det er noen faste stillinger på Thorax intensiv, ellers rotasjon mellom Hovedintensiv, Thorax intensiv og postoperativ overvåking.
Et sengetun er en definert branncelle El-fordeling til intensivrommene er plassert i midtkjernen.