Omtalte standardrom
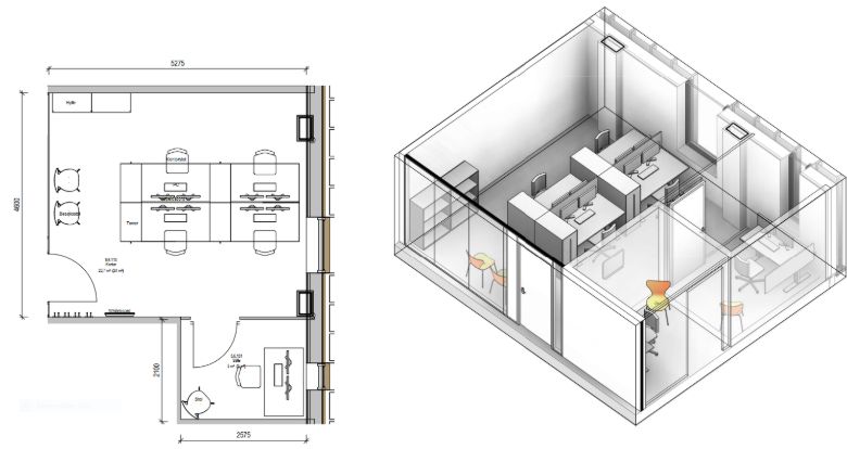
Arbeidsrommene benyttes til dokumentasjon av pasientdata, faglig oppdatering og daglige administrative oppgaver. Bruken og organiseringen av arbeidsrommene varierer; ved enkelte sykehus etableres separate arbeidsrom for ulike kategorier leger, samt egne rom for radiologisk personell. Andre helseforetak foretrekker en mer tverrfaglig tilnærming, der ulike fagspesialiteter og/eller faggrupper arbeider i samme arbeidsrom. Arbeidsrom plasseres i akuttmottaket, evt. nært inntil, avhengig av hvilken funksjon rommet har.
Det er avgjørende at planleggingen sikrer et tilstrekkelig antall arbeidsplasser i arbeidsrom, som dekker oppgavene og den tilhørende dokumentasjonen som ulike faggrupper i akuttmottaket skal utføre. Videre skal det legges til rette for at studenter og helsepersonell under opplæring har tilgang til egnede arbeidsplasser.

Anbefalinger arbeidsrom i akuttmottak
Plassering
Arbeidsrom plasseres i akuttmottaket, evt. nært inntil.
Utforming og funksjonalitet
Arbeidsrommene benyttes til dokumentasjon av pasientdata, tverrfaglig samarbeid og koordinering av arbeidet.
Kapasitet og størrelse
Det er avgjørende at planleggingen sikrer et tilstrekkelig antall arbeidsplasser som dekker oppgavene og den tilhørende dokumentasjonen som ulike faggrupper i akuttmottaket skal utføre. Videre skal det legges til rette for at studenter og helsepersonell under opplæring har tilgang til egnede arbeidsplasser.
Arbeidsrommene erstatter ikke behovet for kontorarbeidsplasser til personell som har behov for det.
