Sengerom, intensivSR.134.06
Eksempler
Eksempel intensivrom SNR (Sjukehuset Nordmøre og Romsdal), Hjelset (2025)
Helse Møre og Romsdal HF - Hjelset
1A.6 IntensivSR.134.06 Sengerom, intensiv

Intensiv og overvåking, somatikk (2018)
Finnmarkssykehuset HF - Kirkenes
1A.6 Intensiv1A.12 IntermediærSR.134.06 Sengerom, intensiv
Evaluert 2021-12-17

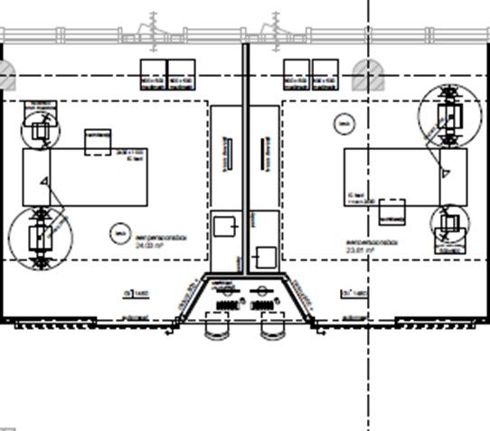
Intensiv, overvåking Sjukehuset Nordmøre og Romsdal (SNR), Helse Møre og Romsdal (2025)
Helse Møre og Romsdal HF - Hjelset
1A.6 IntensivSR.134.06 Sengerom, intensiv

Intensiv- og overvåkingsenhet (2014)
Nordlandssykehuset HF - Stokmarknes i Vesterålen
1A.6 Intensiv1A.12 IntermediærSR.134.06 Sengerom, intensiv
Evaluert 2018-06-29

Intensiv- og overvåkingsområder ved Nye SUS, Stavanger Universitetssykehus HF (2024)
Helse Stavanger HF - Stavanger Universitetssjukehus
1A.6 IntensivSR.134.06 Sengerom, intensiv

Intensivrom (2020)
Nordlandssykehuset HF - Bodø
1A.6 IntensivSR.134.06 Sengerom, intensiv
Evaluert 2023-11-23

Intensivrom (2014)
Nordlandssykehuset HF - Stokmarknes i Vesterålen
1A.6 IntensivSR.134.06 Sengerom, intensiv
Evaluert 2018-06-29

Intensivrom (2017)
Universitetssykehuset Nord-Norge HF - Tromsø
1A.6 IntensivSR.134.06 Sengerom, intensiv
Evaluert 2022-02-08

Intensivrom (2014)
Nordlandssykehuset HF - Stokmarknes i Vesterålen
1A.6 IntensivSR.134.06 Sengerom, intensiv
Evaluert 2018-06-29

Intensivrom ved ByggHaugesund2020, byggetrinn 1, Helse Fonna (2021)
Helse Fonna HF - Haugesund sjukehus
1A.6 IntensivSR.134.06 Sengerom, intensiv

Intensivrom ved St. Olav (2009)
St. Olavs Hospital HF - Øya
1A.6 IntensivSR.134.06 Sengerom, intensiv

Intensivrom, Nytt sykehus Drammen (2025)
Vestre Viken HF - Drammen sykehus
1A.6 IntensivSR.134.06 Sengerom, intensiv

Intensivrom, Sjukehuset Nordmøre og Romsdal (SNR), Hjelset (2025)
Helse Møre og Romsdal HF - Hjelset
1A.6 IntensivSR.134.06 Sengerom, intensiv

Intensivrom, St. Olavs hospital (2009)
St. Olavs Hospital HF - Øya
1A.6 IntensivSR.134.06 Sengerom, intensiv

Sengerom, intensiv (2015)
Sykehuset Østfold HF - Kalnes
1A.6 IntensivSR.134.06 Sengerom, intensiv
Evaluert 2020-03-26

Sengerom, intensiv (2002)
MC Erasmus University Hospital - Rotterdam, Nederland
1A.6 IntensivSR.134.06 Sengerom, intensiv

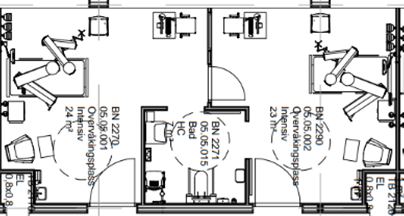
Sengerom, intensiv (2018)
Finnmarkssykehuset HF - Kirkenes
1A.6 IntensivSR.134.06 Sengerom, intensiv
Evaluert 2021-12-17

Utforming av overvåkingsrom (2017)
Universitetssykehuset Nord-Norge HF - Tromsø
1A.6 Intensiv1A.12 IntermediærSR.134.06 Sengerom, intensiv
Evaluert 2022-02-08