Rommet benevnes også som operatørrom i noen prosjekter.
Bruksområde
Dette rommet er radiografens/bioingeniørs arbeidsrom for planlegging, gjennomføring av undersøkelse, betjening av manøverenhet for modalitet og observasjon av pasient. Ved større modaliteter kan flere komponenter for eksempel egen enhet for bildebehandling og kontrastinjeksjon styres/ benyttes her.
Krav til bygg
Det skal være direkte inngang til laboratorium. Rommet skal skjermes mot stråling fra laboratorium.
Mellom manøverrom og laboratorium må det være mulighet for å observere pasient via blyvindu. Personvern i forhold til innsyn skal ivaretas. Dette stiller krav til plassering av vindu, samt plassering av utstyret som benyttes.
Ved større modaliteter er det erfaringsmessig behov for flere styreenheter, (arbeidsplasser) som f.eks. en egen enhet for injeksjon av kontrast og en for bildebehandling.
Det skal være tilgang til IKT for journalføring og det bør være minimum 2 arbeidsplasser med arbeidsstasjoner for journalarbeid. Radiografer jobber ofte i par der den ene klargjør for ny pasient samtidig som den andre avslutter forrige undersøkelse (klargjør bilder til bekrivelse). Behovet for opplæring og undervisning gjør at rommet også må dimensjoneres for slik aktivitet.
Størrelse på rommet avhenger også av bygningsmessig utforming, men er i Standardromskatalogen Standardromskatalogen. Hentet januar 24, 2020 https://sykehusbygg.no definert med 12m2, dvs. 6m2 per arbeidsplass.
Manøverrom er å anse som en fast arbeidsplass, og tilgang på dagslys for personalet er derved et krav. Noen sykehus sørger for dagslys ved at rommet er plassert mot yttervegg, mens indirekte dagslys kan løses ved f.eks. overlys via andre rom/korridor, eller i enden av en korridor. Bilde 1 viser et eksempel på utforming av arbeidsplasser i et manøverrom.

Utforming av manøverrom
Det skal knyttes arbeidsplasser til hver modalitet.
For å sikre godt samarbeid og kommunikasjon mellom personalet kan det være hensiktsmessig at flere modaliteter har felles manøverrom. Dette reduserer også sårbarhet ved mangel på personell.
Rommet må ha en størrelse og utforming som gjør det mulig å skjerme mot innsyn til hvert laboratorium og mot støy fra f.eks. PC’er.Når manøverrom deles mellom flere modaliteter, er det flere personer til stede samtidig. Det kan være behov for å vurdere skyvedør for å kunne skille arbeidsplassene i situasjoner som krever det, eller annen type støyskjerming.
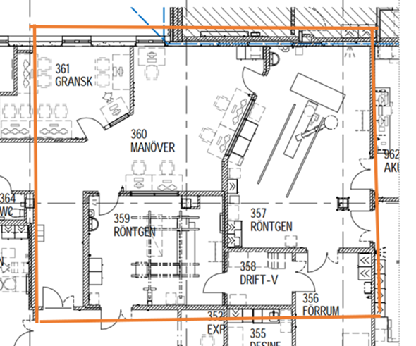
Et eksempel på plassering av manøverrom er vist i Figur 1. Dette er en generisk skisse basert på erfaringer fra flere sykehus og prosjekter i Norge. Her er det knyttet ett manøverrom til hvert laboratorium, som er adskilt fra hverandre.

For å synliggjøre flere måter å plassere og utforme manøverrom på, gjengis to eksempler fra prosjektet Nye Drammen sykehus figur 2 og 3.

Et annet eksempel er knyttet til manøverrom som betjener to generelle røntgen laboratorium:

I figur 4 er det et eksempel hentet fra akutröntgen ved Vrinnevisjukhuset i Norrköping, der CT og et røntgenlaboratorium deler på ett manøverrom.

For ultralyd og mammografi må det tilknyttes rom for administrativt arbeid og dokumentasjon. Eksempel tilhørende ultralyd er vist i kapittel Vedlegg Arealer for ultralyd.
Manøverrom i et akuttmottak har ofte behov for mer plass, da flere klinikere kommer samtidig for å se på bilder.
Erfaring fra bygging av St. Olavs hospital viser at når to manøverrom som lå vegg i vegg med hverandre, fysisk adskilt med en hel vegg, ble det en stund etter innflytting behov for å rive denne skilleveggen. Begrunnelsen var å bedre muligheten for samarbeid og kommunikasjon mellom personalet.
Ved OUS er det dårlige erfaringer med «rygg mot rygg» arbeidsplasser.