Billeddiagnostikk (2025)
Helse Stavanger HF - Stavanger Universitetssjukehus
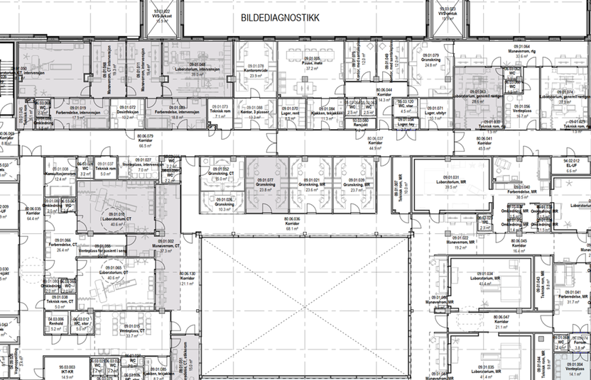
2A.11 Radiologi
Sykehuset dekker en befolkning på ca. 360 000 innbyggere.
Stavanger universitetssykehus er i drift i eksisterende bygg på Våland Det nye sykehuset på Ullandhaug, SUS2023, er under bygging. Første byggetrinn skal stå klart i 2023, da flyttes somatiske senger, akuttfunksjoner og nødvendige støttefunksjoner til det nye sykehuset. Eksisterende sykehusbygg på Våland skal bestå for dagbehandling, dagkirurgi og poliklinisk virksomhet.
- Bildediagnostikk er i stor grad utformet som klustermodell, der like modaliteter grad er plassert geografisk nært hverandre.
- Radiologisk- og kardiologisk intervensjon er plassert i samme fløy som akuttmottak og hybrid/multimodal lab. Dette er hensiktsmessig for pasienter som trenger hurtig avklaring og behandling for hjerneslag, ved traume og andre tilfeller som krever intervensjon.
- CT i akuttmottak har direkte tilgang fra traumerom. Konvensjonell røntgen og UL er plassert mellom akuttmottak og akutt poliklinikk, for også å betjene legevakt og skade- poliklinikk.
- Det er en MR- fløy ikke langt fra akuttmottak. Inntak av inneliggende pasienter og fra poliklinikk er adskilt.
- Generell røntgen og CT er i en fløy og plassert slik at de kan håndtere store volum av elektive pasienter.
- Det er én inngang for inneliggende og én for polikliniske pasienter.
- Nukleærmedisin og PET er i samme fløy.
Figur viser en skisse over planlagt plassering av bildediagnostikk i forhold til akuttmottak ved SUS 2023.

Evaluering