Ambualnsestasjon, 4 biler (2024)
Universitetssykehuset Nord-Norge HF - Narvik
3.7 Ambulansetjeneste
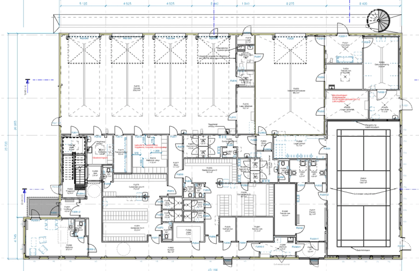
Ambulansestasjonen i Narvik er dimensjonert for 4 biler. I samme bygg ligger det en CBRNE-enhet. Stasjonen ligger på samme tomt som sykehuset i Narvik.
Arbeidstilsynet var involvert gjennom flere møter i prosjekteringsprosessen for å sikre gode løsninger som er i tråd med kravene ArbeidstilsynetKrav til arbeidslokaler og arbeidstøy i ambulansetjenesten. https://www.arbeidstilsynet.no/arbeidsmiljo/krav-til-arbeidslokaler-og-arbeidstoy-i-ambulansetjenesten/https://www.arbeidstilsynet.no/arbeidsmiljo/krav-til-arbeidslokaler-og-arbeidstoy-i-ambulansetjenesten/.

