Ansatte i sengeområder tilbakelegger en betydelig distanse i løpet av sin arbeidsdag, gjennom en vakt. Alt som kan gjøre for å redusere gangavstander har betydning for pasientsikkerhet, arbeidsmiljø og rasjonell drift. Plassering av arbeidsbaser og støtterom må analyseres i dette perspektivet.
Organisering av et sengeområde og plassering av støtterom
Sengetun bidrar til å redusere gangavstander ved nærhet mellom arbeidsstasjon, nærlager og de pasientrommene som skal betjenes. Dette framkommer av flere kunnskapsoppsummeringer og evalueringer tilgjengelig på Sykehusbygg HF sin nettside. https://sykehusbygg.no/kunnskapsdeling
Pasientnære arbeidsstasjoner har bidratt til bedre observasjonsmuligheter og fremmer dermed pasientsikkerhet knyttet til for eksempel risiko for fall. Evalueringer av flere av sykehusene omtalt i dette dokumentet, viser at ansatte er fornøyde med plassering av arbeidsstasjoner nært sengerom og opplever at gangavstand fra arbeidsstasjon til sengerom er kort. Dette er i samsvar med kunnskapsoppsummering fra Strid og Schmitt.
Informasjon og kartlegging av bevegelsesmønsteret til sykepleierne kan gi viktig informasjon i planlegging av plassering av rom i forhold til hverandre. Ved å plassere rom som benyttes oftest av sykepleiere nærmere hverandre, kan gangavstander reduseres. En studie fra Zadeh et al. (2012) viste at de rommene som sykepleierne oftest brukte, var pasientrom (30%), arbeidsstasjon (18%). De andre rommene lå mellom 5-9%.
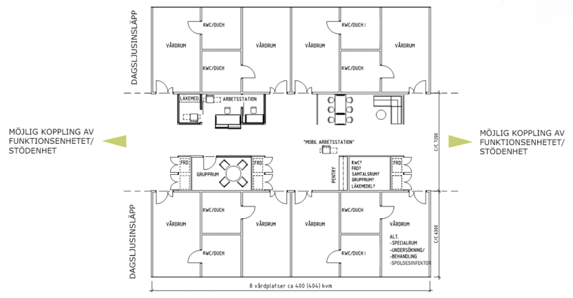
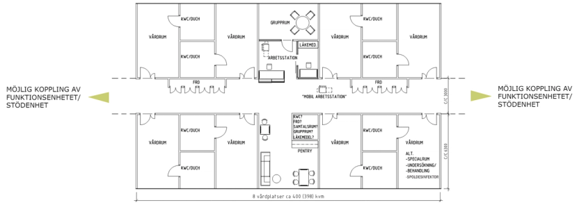
Støtterom plassert nær sengerommene kan føre til lengre bygningskropp når man setter sammen flere tun på rad, eller legger dem mellom sengerom i korridor uten tun-organisering. Lengre avstander mellom sengerommene kan også være en konsekvens av å plassere støtterom nært sengerom. Alternativet er å plassere noen av støtterommene mot korridor, se figuren under.

For å kunne plassere noen støtterom mot korridor, vist i figur over, er det behov for brede korridorer, noe som gjør bygningskroppen dypere. Figuren over viser at det mulig å passere med to senger, men ikke hele veien. Beslutning om korridorbredde har konsekvenser for brutto/netto-faktor.

I figuren over er støtterom plassert annerledes, og løsningen gir større korridorbredde. Begge eksempler har like mange sengerom med bad.
Støtterom og nærhetsbehov
Byggets utforming, gangavstander, antall støtterom som skal betjene et sengeområde og nærhet/tilgjengelighet har betydning for plassering av støtterom.
Tema som bør drøftes: støtterom og nærhetsbehov, normalsengeområde somatikk
- Hvor mange støtterom per sengeområde?
- Prioritering av nærhet mellom støtterom og andre rom som arbeidsstasjon og sengerom.
- Hvilke støtterom er hyppigst i bruk?
- Hvilket støtterom må man nå raskt?
- Hvilke støtterom kan deles med flere sengetun
- Hvilke støtterom kan deles med flere sengeområder
- Erfaring fra pandemi – konsekvenser for antall og plassering av desinfeksjonsrom og lager
Oversikt - innsyn - skjerming
Oversikt over bevegelser i sengeområdet er viktig for personalet mht. pasientsikkerhet, faglig trygghet og sikkerhet mot trusler og vold. De har behov for oversikt både over hvordan det øvrige personalet beveger seg, og over pasientene. Pasienter vil ofte ha både ønske om og nytte av å kunne følge med på personalets bevegelser, se at det er noen som beveger seg i korridoren. Visuell kontakt påvirker pasientens opplevelse av trygghet, av å bli sett.
Personalet ønsker å ha visuell kontakt med pasienter fra korridor inn i sengerom. Erfaring viser at det gir kortere gangdistanser dersom pasienten kan observeres i seng uten at personalet må åpne døra og gå inn i rommet. Oversikt og siktlinjer er derfor viktige for rasjonell drift, for opplevelsen av et trygt arbeidsmiljø og for pasientens opplevelse av trygghet.
Hensynet til innsyn må balanseres mot behov for skjerming. Med glass i dør eller korridorvegg inn til pasientrom må det være mulig å skjerme for innsyn etter behov uten å måtte froste glasset. Hensyn til renhold vil påvirke hvilke løsninger som kan velges.

Eksemplet fra Nye Drammen sykehus i figuren over viser hvordan innvendige persienner i glass i dør kan åpnes og lukkes utenfra. Innovative glass med bryter for frosting er også en mulighet.
Dersom man velger dør uten glass, er det en fordel at døren kan stå i åpen stilling ved behov.
Plassering av bad - siktlinjer
Ensengsrom med eget bad er en klar anbefaling fra smittevern.
Badet kan plasseres på ulike måter i forhold til sengerommet og korridor i sykehus. Figurer under viser noen alternativer. Plassering av bad påvirker gangavstander med lengde på korridor, og påvirker mulighet for siktlinjer inn til hodeenden av pasientseng. Figur nedenfor viser hvordan badets plassering og utforming har konsekvenser for siktlinjen fra korridor til pasient. Det å kunne observere pasienten uten å måtte gå inn på pasientrommet er viktig for å redusere gangdistanse, og gir mindre risiko for å forstyrre pasienten.
Tabellen under viser plassering av bad i ulike prosjekter.

Nye SUS har både løsning med forrom (med dør til sengerom og korridor) og sengerom hvor inngangen fra korridor utgjør en forgang uten dør før en kommer inn i selve rommet.
Figuren under viser hvordan plassering av bad kan variere i sykehus, også innenfor det samme sykehuset.

Nedenfor drøftes eksemplene presentert i figur over.
St. Olavs hospital byggefase 1 og 2
I Nevrosenteret, byggefase 1 ved St. Olavs hospital, må pasienten gå ut av sengerommet for å komme til badet, og ofte dele bad med andre pasienter. Unntak er for isolat.
I byggefase 2 AHL er det direkte tilgang fra sengerom til bad, men to og to pasienter deler ett bad i store deler sykehuset, og det er kun to ensengsrom med eget bad per 8 sengerom. Ett bad mellom eller ved siden av to sengerom kan være arealbesparende og dermed redusere gangavstander og bygge-kostnader. Ansatte sier at det er en utfordring at 2 pasienter deler bad når en av pasientene har smitte. Ved smitteutbrudd må den andre pasienten benytte et annet bad i sengetunet med tilgang fra korridor. Dette har konsekvenser for antall toaletter og tilgang til dusj fra korridor i sengetunet.
I Byggveileder for smittevern er det anbefalt ensengsrom med eget bad. Løsningen for bad ved St. Olavs hospital fase 1 og 2 anbefales ikke ut fra et smittevernsperspektiv.
Sykehuset Østfold Kalnes
På Kalnes er det to løsninger for plassering av bad. I den ene er badet plassert mot korridor, i den andre mellom sengerom, se figur 4.14 studie 3a og 3b.
Bad mot korridor
Forgangen, som dannes ved å plassere bad mot korridor, medfører at ansatte er nødt til å gå inn i rommet (noen skritt) for å komme nærmere sengen.

Målingene som ble gjennomført i evaluering av Kalnes, viser at ansatte må gå en god del lengre samlet sett når badene er plassert ut mot korridor. Gangavstand målt på 4 rom i Kalnes viser at ansatte går nesten 13 meter lengre.
Fordelen med bad mot korridor (løsning 3a Kalnes) er at forgangen kan benyttes som forrom ved smitte, dermed kan sengerommet til en viss grad omgjøres til enkel isolering eller isolat dersom det blir satt inn dekontaminator på badet.
Ulempen er at pasienten ikke har oversikt over hvem som kommer inn på sengerommet, og pasienten er ikke synlig fra korridor. Løsningen medfører som nevnt, også økt gangavstand.
Bad mellom sengerom
I løsningen med bad mellom sengerom (løsning på Kalnes 3b) ser ansatte pasienten umiddelbart når de er kommet inn på sengerommet. En annen fordel er at rommet får godt med dagslys.
Ulempen med plassering av bad mellom sengerommene er lengre bygningskropp, noe som kan være utfordrende når det foreligger tomtebegrensninger. Det påvirker også korridorlengde og dermed gangavstand.
Nordlandssykehuset, Vesterålen
Sengetun i Vesterålen har 4 bad som er plassert mot fasade og 4 bad som er plassert mot korridor med en skrå vegg på badet. I figur 4.16 er det vist to eksempler på sengerom med tilhørende bad (4a og 4b). Forskjellen ligger i sengerommets størrelse og fasadeareal. I eksempel 4b er vinduet noe større og det gir mer daglys enn ved 4a.
Plassering av bad mot ytre fasade (Vesterålen) gir noe redusert dagslys sammenlignet med øvrige eksempler, men dette må veies opp mot god oversikt over pasienter fra korridor. God oversikt over pasienter fra korridor er viktig med tanke på framtidens pasienter, som ofte kan være mer overvåkingskrevende. Disse pasientene vil trenge tettere oppfølging, mer teamarbeid og samhandling enn dagens pasienter. Mellomliggende bad eller bad mot fasade legger bedre til rette for oversikt fra korridor, gjerne kombinert med glass i dør eller korridorvegg.
I alle eksemplene vist i figur 4.16, med unntak av Kalnes eksempel 3a (første figur fra høyre), er det god oversikt over inngangspartiet til sengerommet fra pasientens seng og god oversikt over sengerommet når man kommer inn på rommet.
Løsningen i Vesterålen med ‘utenpåliggende’ bad mot fasade, reduserer lengden på bygget, det gir god oversikt, og det gir bad til hvert sengerom i tråd med anbefalingene for smittevern. Det kan være forskjeller i byggekostnader og vedlikehold ved de ulike løsningene, men dette er ikke drøftet i dette dokumentet.