Tøysentral Nye UNN Narvik (2024)
Universitetssykehuset Nord-Norge HF - Narvik
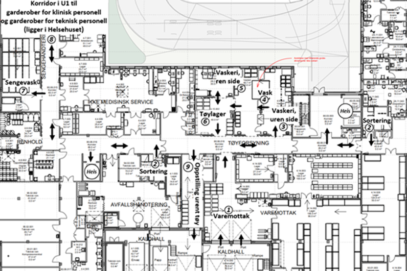
4.15 Tøyhåndtering
Nye UNN Narvik sykehus ble tatt i bruk høsten 2024, og er lokalsykehus for pasienter i Ofoten og deler av Midt-Troms. Sykehuset er på ca. 32.400 m2 og skal samle tilbudet innen somatikk og psykisk helse og rus i ett bygg. Sykehuset har 48 somatiske senger plassert på plan 3 og 43 senger for VOP på plan 2.
For Nye UNN Narvik er det er lagt til grunn avtale med eksternt vaskeri for leveranse av pasienttøy og personaltøy. Avdelingspakkede leveranser i vogn (pasienttøy og personaltøy) fra eksternt vaskeri til avdelinger og garderober, basert på aktiv forsyning og behovsbaserte leveranser.
I tillegg håndterer det sentrale varemottaket både mottak og interntransport av rent og urent tøy for Furumoen sykehjem som er lokalisert på samme tomt som Nye UNN Narvik.
Det er planlagt med interne vaskeri som skal ivareta vask av dyner/puter og klær til teknisk- og ambulansepersonell. Tøyforsyningens arealer er plassert på plan U1.
For retur av urent tøy er det planlagt to sjakter for tøynedkast, hvor det er oppsamling og sortering på plan U1.
Beskrivelse av vareflyt for rent pasienttøy (se også figuren nedenfor):
- Pasienttøy vaskes ved eksternt vaskeri
- Leveranse av rent pasienttøy til varemottak
- Midlertidig oppstilling i varemottak
- Manuell transport fra varemottak til tøylager i avdelinger
- Manuell transport fra varemottak til tøyforsyningens tøylager (bufferlager)
- Manuell transport til tøylager i avdelingene fra tøyforsyningens tøylager ved
- behov
- Ved reiing av senger etter sengevask benyttes tøyforsyningens tøylager

Beskrivelse av vareflyt for rene dyner og puter (se også figuren nedenfor):
- Dyner og puter vaskes internt i tøyforsyningen
- Lagring av rene dyner og puter i tøyforsyningens tøylager
- Forsyning av dyner og puter til reiing av rene senger

Beskrivelse av vareflyt for urent pasienttøy og urene dyner og puter (se også figuren nedenfor):
- Urent tøy sorteres i avdeling, og legges i egne sekker for pasienttøy og egne sekker for dyner/puter.
- Sekker med urent tøy kastes i tøysjakt.
- Oppsamling av sekker i U1.
- Sortering mellom sekker med urent pasienttøy og med urene dyner/puter.
- Urent pasienttøy samles i tøyvogn og transporteres til oppstillingsplass for urent tøy i tilknytning til varemottaket, i påvente av henting til eksternt vaskeri.
- Tøysjakt, sortering i bunn av tøysjakt: fordeling av hva som skal til internt og eksternt vaskeri.
- Urene dyner/puter samles i tøyvogn og transporteres til uren side av internt vaskeri.

Beskrivelse av vareflyt for personaltøy for klinisk personell (se også figuren nedenfor):
- Personaltøy for klinisk personell vaskes ved eksternt vaskeri
- Leveranse av rent personaltøy for klinisk personell til varemottak
- Midlertidig oppstilling i varemottak
- Transport fra varemottak til garderober
- Urent personaltøy for klinisk personell samles opp ved garderobeområder og transporteres i U1 til oppstillingsplass for urent tøy i tilknytning til varemottaket i påvente av henting til eksternt vaskeri

Oppsummerende illustrasjon for vareflyt i forsyningskjeden tøy er vist i figuren nedenfor.

Vareflyt for tøy på plan U1 er illustrert på utsnitt av plantegning i figuren nedenfor, og benytter nummerering fra figuren ovenfor for å vise plassering på plantegning.
